Lediga kontorslokaler i Uppsala
-
Stationsgatan 21 – 29Centrala Uppsala, Uppsala703 m²Kontor
Modernt kontor i en av Uppsala häftigaste miljöer - här syns verksamheten!
Ett modernt och inbjudande kontor för den lite större verksamheten i huset Juvelen med sin häftiga arkitektur och sina generösa takhöjder. Kontoret ha... - Igår
-
Smedsgränd 3Centrala Uppsala, Uppsala508 m²Kontor
Kontor för många mitt i stan
Hitta din nya arbetsplats mitt i stadens puls! Den här centralt belägna lokalen erbjuder en kombination av funktion och trivsel som passar perfekt för... -
S:t Olofsgatan 11Uppsala, Uppsala298 m²Kontor
S:t Olofsgatan 11
Här finns möjlighet att hyra 298kvm nyreonverat kontor i ett av Uppsalas bästa lägen. - 2 dagar
-
Valthornsvägen 1BGottsunda, Uppsala219 m²ButikKontorRestaurang & café
Mångsidig lokal med god synlighet vid Gottsunda Centrum
-
Bäverns Gränd 17City , Uppsala700 - 3 400 m²UtvaldKontorKontorslokal i attraktivt läge mitt på Uppsala C
En annons från Castellum - 3 dagar
-
Verkstadsgatan 10-14Uppsala178 m²Industri & verkstadKontorLager & logistik
Kontorslokal i expansiva Boländerna - 178 kvm på Verkstadsgatan 10!
- 8 dagar
-
Svederusgatan 1Fyrislund, Uppsala12 - 80 m²KontorKontorshotell & coworking
Kontorsrum i olika storlekar – inflyttningsklara med fritt internet och stilrena gemensamma utrymmen
Nu finns dessa attraktiva kontorsrum tillgängliga för uthyrning, med storlekar från 12 till 80 kvm, perfekt för företag i olika skeden. Kontorsrummen... -
Gnistagatan 9Fyrislund, Uppsala1 334 m²Industri & verkstadKontorLager & logistik
- 10 dagar
-
S:t Persgatan 7Centrala Uppsala, Uppsala117 m²Kontor
Ett stenkast från gågatan
Charmigt kontor i tidstypisk miljö Nu har du möjlighet att hyra ett mindre kontor i en vacker fastighet från 1920-talet. Lokalen är rumsindelad och ... -
Ulls väg 24AGreen Innovation Park, Ultuna, Uppsala15 m²KontorKontorshotell & coworkingYteffektiva kontor om 15 kvm/rum för dig som vill bli en del av innovationskulturen i Green Innovation Park!
Lokalerna utgörs av flexibla och yteffektiva kontorsrum. I lokalerbjudandet ingår gemensamma funktioner såsom mötesrum, telefonrum, pentry, kaffemask... - 15 dagar
-
Rapsgatan 8Fyrislund/Slavsta, Uppsala400 - 1 200 m²KontorSkola, vård & omsorgÖvrigt
Rymlig och anpassningsbar lokal om 1 200 kvm – perfekt för yrkesutbildning eller kontor
Här finns en fantastisk möjlighet att hyra en rymlig och välplanerad lokal om totalt 1 200 kvm, idealisk för yrkesutbildningar, kontor eller liknande... - 16 dagar
-
Kungsängsvägen 27Kungsporten, Uppsala8 - 42 m²KontorKontorshotell & coworking
Attraktiva kontor & coworking i Uppsala från 2 500 kr/mån. Välkommen att boka visning!
Välkommen till FirstOffice Kungsporten! Ett kontorshotell med moderna lokaler, där vi erbjuder en plats att arbeta, nätverka, samverka och inspireras... -
Verkstadsgatan 10Uppsala300 m²Kontor
Kontorslokal i expansiva Boländerna - 300 kvm på Verkstadsgatan 10!
Välkommen till denna attraktiva kontorslokal om 300 kvm med öppen planlösning och fönsterpartier som ger ett generöst ljusinsläpp. Lokalen är belägen ... -
Grafikgatan 28Uppsala393 m²Kontor
Kontor med utmärkt skyltläge mot E4!
Välkommen till ett rymligt och flexibelt kontor om 570 kvm, beläget en trappa upp på Grafikgatan 28. Här får du en ljus och trivsam arbetsmiljö med st... - 17 dagar
-
Grafikgatan 26Fyrislund, Uppsala1 845 m²ButikKontorLager & logistik
Butiks- och lageryta om 1 845 kvm med bästa skyltläge mot E4!
Välkommen till en rymlig och välplanerad lokal på 1845 kvm, perfekt för butik, showroom och lagerverksamhet - strategiskt belägen på attraktiva Grafik... -
Grafikgatan 26Uppsala950 m²Industri & verkstadKontor
Flexibel kontorslokal om 950 kvm i expansiva Fyrislund - med möjlighet till direkt tillträde!
Nu finns möjlighet att hyra en representativ och ljus kontorslokal på hela 950 kvm, strategiskt belägen i det snabbväxande området Östra Fyrislund i U... -
Bolandsgatan 16ABoländerna, Uppsala600 m²KontorLager & logistik
Ljus och flexibel hörnlokal i Boländerna – kontor och lager i perfekt kombination
Nu finns möjlighet att hyra denna rymliga och ljusa lokal om 600 kvm på Bolandsgatan, strategisk belägen i populära Boländerna - ett av Uppsalas mest ... -
Få hjälp att hitta rätt objekt
Beskriv vad du söker i vårt enkla formulär så hjälper vi dig att hitta rätt
-
Stads-Gånsta 12Enköping, Uppsala1 950 m²Industri & verkstadKontorKontorshotell & coworking
- 20 dagar
-
Storgatan 22Centrum, Uppsala85 m²Kontor1331 kr/m²/år
- 26 dagar
-
Fyrislundsgatan 19Östra Salabacke, Uppsala132 m²ButikKontorRestaurang & café
Cafe-Butik med synligt läge - Östra Salabacke
1823 kr/m²/år - december 2025
-
Artillerigatan 7Blåsenhus, Uppsala109 m²KontorKontorshotell & coworking
Artillerigatan 7 – nyrenoverade kontor med flexibel kontraktslängd. Nära centrum med grönskande omgivningar
På Artillerigatan 7 finner du trivsamma och nyrustade lokaler med yteffektiv planlösning. Perfekt för mindre företag som söker en inspirerande och p... -
Stora Torget 4, Svartbäcksgatan 4Centrala Uppsala, Uppsala211 m²Kontor
Ett härligt ljust, generöst och välkomnande kontor med skyltläge mot Stora Torget
Nu finns möjlighet att hyra ett mycket trevligt kontor på 211 kvm mitt i hjärtat av stan, vid Stora Torget. Med stora fönster som vetter mot både gåga... -

Säbygatan 10/Björkgatan 67BBoländerna, Uppsala450 - 1 550 m²KontorLager & logistikKombinationslokal i Främre Boländerna
Modern kombinationslokal i två plan – kontor och lager men kan även anpassas för lätt labbverksamhet. Nu finns möjlighet att etablera er verksamhet... -
Vaksalagatan 2City, Uppsala6 - 2 400 m²KontorKontorshotell & coworking
I Gamla Rådhuset, en av Uppsalas vackraste och mest anrika byggnader, erbjuder vi universitetsstadens modernaste coworking.
Här finner du ljusa och frächa lokaler, med fullservice och flexibla avtal. Välkommen att boka in en visning! Det finns tre olika medlemskap, men d... -
Vaksala Fridhem 40Vaksala, Friköpta, intill E4, Uppsala105 m²Industri & verkstadKontorLager & logistik
Äg din egen lokal privat eller via företag - Möjlighet till snabbt tillträde!
Inflyttningsklara lokaler- fåtal kvar. Äg din egen lokal och skapa ett långsiktigt värde – privat eller via ditt företag . Lyft momsen på d... -
Svederusgatan 1Fyrislund, Uppsala230 m²Kontor
Ljus och välplanerad kontorslokal med showroomsmöjlighet i Fyrislund
Denna lediga kontorslokal om totalt 230 kvm håller mycket hög standard och erbjuder en trivsam och flexibel arbetsmiljö. Lokalen är belägen på våning... -
Almas allé 3Ultuna/Green Innovation Park, Uppsala346 m²Kontor
Modernt kontor för växande företag i Green Innovation Park
Ta chansen att etablera din verksamhet i ett växande innovationskluster. Här samlas aktörer med ett gemensamt mål - att verka för och bidra till en m... -
Stångjärnsgatan 8Boländerna, Uppsala30 - 330 m²KontorKontorshotell & coworking
Modernt kontorshotell centralt beläget i Boländerna
I vårt moderna kontorshotell på Stångjärnsgatan på plan 2 med hiss, finns ett stort utbud av kontorslokaler från 30 kvm till 330 kvm, med tillgång ti... -
Stångjärnsgatan 8Boländerna, Uppsala11 m²KontorKontorshotell & coworking
Kontorshotell med gemensam uteplats centralt beläget i Boländerna
I vårt kontorshotell på Stångjärnsgatan på plan 2 med hiss, finns kontorslokaler i varierande storlekar, med tillgång till ett gemensamt kök, kaffema... -
Stångjärnsgatan 8Boländerna, Uppsala84 m²KontorKontorshotell & coworking
Ljus hörnlokal om 84 kvm för kontor med gemensam uteplats
I vårt kontorshotell på Stångjärnsgatan på plan 2 med hiss, finns ett varierat utbud av kontorslokaler från 11 kvm och uppåt, med tillgång till ett g... -
Stångjärnsgatan 8Boländerna, Uppsala41 m²KontorKontorshotell & coworking
Trevlig kontorslokal om 41 kvm med tillgång till gemensamt kök och uteplats
I vårt kontorshotell på Stångjärnsgatan 8 på plan 2 med hiss, finns ett varierat utbud av kontorslokaler från 11 kvm och uppåt, med tillgång till ett... -
Libro Ringväg 3Librobäck, Uppsala180 m²KontorLager & logistik
Lokal om 180 kvm i 2 plan med planer för installation av port och möjlighet till lager
Lokalen är i dagsläget uppdelad i två plan med kontors- och personalytor. Planeras att installera port för att möjliggöra lagerfunktion i bottenplan.... -
Hållnäsgatan 8Librobäck, Uppsala468 m²Industri & verkstadKontorLager & logistik
Lagerlokal om 468 kvm med två portar och gott om parkeringsmöjligheter
Denna lokal i markplan kan med fördel nyttjas till lager, produktion, verkstad eller föreningsliv. Yta för kontor/gemensamhetsyta med tillhörande omk... -
Hållnäsgatan 8Librobäck, Uppsala704 m²ButikIndustri & verkstadKontor
Lagerlokal i Librobäck med 2 portar och oljeavskiljare i fint skick. Möjlighet till uppställningsyta upp till 5000kvm
På Hållnäsgatan 8 (Lokal 1) i Librobäcks industriområde erbjuder vi en 704 kvm öppen yta för lager/verkstad/produktion med 2 portar och oljeavskiljar... -
Vaksala-Eke Hus IVaksala-Eke, Uppsala212 m²Industri & verkstadKontorLager & logistik
Kontorslokal i två plan om 212 kvm med möjlighet till tillkommande lageryta på 76 kvm
Plan 1: 72 kvm kontorsyta med tillhörande konferensrum Plan 2: 144 kvm kontorsyta inklusive yteffektivt pentry, omklädningsrum samt dusch Möjlighet... -
Vaksala-Eke Hus B2Vaksala-Eke, Uppsala451 m²Industri & verkstadKontorLager & logistik
Lagerlokal med port och kontorsytor med pentry
Lokal i två plan med lager- och produktionsyta om 266 kvm på plan 1, med tillhörande port och personalytor med mötesrum och pentry på plan 2. -
Vaksala-Eke Hus GVaksala-Eke, Uppsala704 m²Industri & verkstadKontorLager & logistik
Yteffektiv verksamhetslokal, plan 1 om 540 kvm lager/verkstad med två portar i markplan, 7m takhöjd. Plan 2 fina ytskikt om 144 kvm med kontor/pers...
-
Vaksala-Eke Hus IVaksala-Eke, Uppsala432 m²Industri & verkstadKontorLager & logistik
Lokal om 432 kvm i två plan med 7,5 m i takhöjd, 4 m port och oljeavskiljare
Entreplan: 288 kvm lokal för såväl lager och verkstad som produktion, med generös takhöjd, bred port och oljeavskiljare. Plan 1: 144 kvm kontorsyta... -

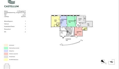
Kungsgatan 43City, Uppsala62 m²KontorMindre lokal i Läkarhuset
Välkommen till Läkarhuset mitt i Uppsala. Här finns nu möjligheten att hyra en lokal om 55 kvadratmeter med goda kommunikationer och ett naturligt flö... -

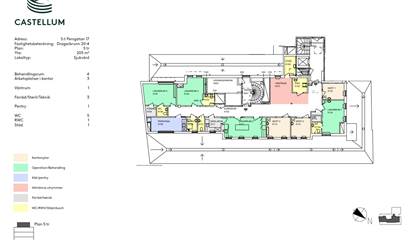
Kungsgatan 43City, Uppsala205 m²KontorVälplanerad vårdlokal i centrala Uppsala
Välkommen till denna lokal om 205 kvadratmeter i Läkarhuset mitt i centrala Uppsala. Läkarhuset är beläget med omedelbar närhet till citykärnan, res... -
Verkstadsgatan 8Boländerna, Uppsala1 087 m²ButikKontor
Butik och kontor där många människor rör sig
Ett nybyggt hus med trästomme ger en alldeles särskild känsla i lokalen. Och möjligheterna är många eftersom utformningen är ogjord i väntan på ny hy... -
Verkstadsgatan 3Boländerna, Uppsala854 m²Kontor
854 kvm kontorslokal med egen ingång centralt i Boländerna
På Verkstadsgatan 3 i Boländerna finns denna ljusa lokal över två plan med egen ingång. Lokalen har idag cellkontor men kan lätt öppnas upp till öppe...













