Fastighets AB Balder
Tel: 020-15 11 51 balder.se
Företagsinformation
Fastighets AB Balder är ett börsnoterat fastighetsbolag som med lokal förankring skall möta olika kundgruppers behov av lokaler och bostäder. Balder skapar värden för kunderna, medarbetarna och samhället genom att träffa och värna om våra kunder, ha korta beslutsvägar samt att noggrant välja kostnadseffektiva förvaltningslösningar. Balder skall vara en långsiktig ägare som baserar verksamheten på stabila kassaflöden och nöjda kunder. Genom att äga och förvalta våra fastigheter under lång tid kan vi nyfiket följa våra hyresgästers utveckling.
-

Pickesjövägen 2Borås40 m²Kontor40 kvm enkel kontorslokal
Nu finns möjlighet att hyra en mindre kontorslokal om ca 40 kvm på Pickesjövägen 2 i Borås. Lokalen lämpar sig för dig som söker en enkel arbetsyta ut... -

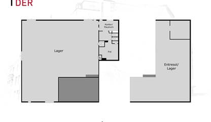
Bolshedens Industriväg 18Kungsbacka909 m²Kontor909 kvm lager/kontor i inhägnat område
Lokalen omfattar totalt ca 909 kvm, varav ca 143 kvm är kontor och resterande del lager. Kontoret och lagret har separata entréer, vilket innebär att ... -

Södra Deltavägen 3BGöteborg3 615 m²ButikLokalen uppmäter 3615 kvadratmeter som är fördelade på två våningsplan och lämpar sig för större varuhus. Lokalen är väldisponerad med stora butik- oc...
-
Sofierogatan 3AGöteborg52 m²Industri & verkstad
Förråd vid Liseberg
Letar du efter extra utrymme till företagets ägodelar? Då har vi lösningen. Nu har du chansen att hyra förråd om 44-52 kvm i Kanold huset intill Liseb... -
Backavägen 3Göteborg27 m²Industri & verkstadFörråd med port
Nu finns möjligheten att hyra ett förråd om ca 27kvm i källaren på Backavägen 3. Dubbla portar gör det smidigt att komma in/ut med ert företags tillhö... -
Ektorpsvägen 2Nacka10 - 24 m²Industri & verkstad
Förråd för förvaring 10-24 kvm
Tillgängliga förråd mellan 10-24 kvm. Förråden nås via trapphus eller hiss. Utrymmet är endast lämpligt för förvaring. Välkommen att kontakta oss ... -
Hammarby Allé 47Stockholm7 - 22 m²Industri & verkstad
Förråd för förvaring 7-22 kvm
Tillgängliga förråd mellan 7-22 kvm. Förråden nås lätt via garage med direkta lastmöjligheter eller till fots genom entré med trappa/hiss. Utrymmet ä... -
Sandelsgatan 2BKarlstad8 m²Industri & verkstad
Är du intresserad av förrådsutrymme? Källarförråd på Sandelsgatan 2B på 8m2. Uthyres efter överenskommelse. Kontakta oss för mer information.
600 kr/m²/år -

Kåsatorpsvägen 5Skövde197 m²KontorLokal efter dina behov
Är du i behov av lokal? Denna lokalen som är belägen i Skövde har en öppen planlösning, perfekt till dig som är i behov av lageryta, förråd, konto... -

Nya Torget 3Mariestad127 m²ButikLokalen som anpassar sig efter dig!
Är du i behov av att hyra en lokal med unika möjligheter? Med stans bästa läge är det bara din idé och ambition som sätter gränser för den här loka... -

Kungsgatan 37Stockholm50 m²KontorLjus och charmig kontorslokal centralt på Kungsgatan
Välkommen till en ljus och hemtrevlig kontorslokal i ett av citys mest eftertraktade lägen. Lokalen präglas av bevarade originaldetaljer som skapar en... -

Upplandsgatan 9BStockholm36 m²ButikLedig butikslokal i Vasastan - Totalrenovering ingår!
Nu finns möjlighet att hyra en mindre butikslokal om 36 kvm på Upplandsgatan 9B, med mycket attraktivt läge i Vasastan, endast ett stenkast från Drott...5800 kr/m²/år -

Stockholmsvägen 45CDanderyd60 m²KontorHörnlokal om 60 kvm med välkomnande entré!
Nu finns det möjligheten att hyra en attraktiv hörnlokal på bottenplan om 60 kvm på Stockholmsvägen 45C. Lokalen har stora fönsterpartier som ger ett ... -

Vasavägen 30Danderyd79 m²KontorLokal på 79 kvm i hjärtat av Stocksund
Nu finns möjlighet att hyra en lokal om 79 kvm med attraktivt läge på Vasavägen 30 i Stocksund. Lokalen består av flertalet rum som lämpar sig väl för... -

Kungsgatan 37Stockholm128 m²KontorLjus kontorslokal med många rum mitt i city!
Välkomna till en ljus och rymlig lokal med många fönster, belägen på ett av Stockholms bästa lägen! Här erbjuds hela fem kontorsrum i olika storlekar,... -

Västra Gatan 84-86Kungälv161 m²KontorKontorslokal i centrala Kungälv
Nu finns möjligheten att hyra en trevlig och välplanerad kontorslokal mitt på charmiga Västra gatan i Kungälv. Lokalen ligger på våningsplan 1 och bju... -

Rissne torg 1Sundbyberg1 556 m²Skola, vård & omsorgVårdlokal centralt i Rissne Centrum!
Välkommen till en fantastisk möjlighet i Rissne Centrum, här erbjuds 1 556 kvm för vårdverksamhet mitt i centrum! Tunnelbana direkt utanför entrén och...1350 kr/m²/år -
Rotebergsvägen 3Sollentuna15 m²Industri & verkstad
Förråd om 15 kvm nära E4:an
Förråd uthyres – 15 kvm, solida väggar och lättillgängligt läge nära E4:an Nu finns möjlighet att hyra ett rymligt förråd på ca 15 kvm med solida v... -

Håkansgatan 3DGöteborg40 m²Industri & verkstadLokal uthyres på Hisingen
Källarlokal på 40kvm uthyres till kontorsverksamhet eller liknande. Pentry & badrum finns. Lokalen ligger i ett hyreshus med totalt 12st lägenheter oc... -

Saltmätargatan 5Stockholm189 m²KontorHörnlokal på bra adress i city!
Varmt välkommen till Saltmätargatan 5 med stadspulsen runt hörnet. Här erbjuds ett ljust hörnkontor på våning 3. Lokalen är rumsindelad med 8-10 konto... -

Saltmätargatan 9Stockholm100 m²KontorFin lokal mitt i city!
Mycket trevlig lokal med det perfekta läget i city. Rumsindelning via glasväggar som gör att lokalen känns mycket ljus. Lokalen är fördelad med en öpp... -
Sundbergsgatan 20Karlstad7 m²Industri & verkstad
Källarförråd på 7kvm. Hör av er vid intresse! Tillträde 1/3-26
-

Håkansgatan 3DGöteborg80 m²Industri & verkstadKällarlokal på Hisingen
Källarlokal på 80kvm uthyres till kontorsverksamhet eller liknande. Pentry & badrum finns. Lokalen ligger i ett hyreshus med totalt 12st lägenheter oc... -
Hägerneholmsvägen 17Täby90 m²Butik
Välkommen till denna trevliga och moderna lokal i den nya stadsdelen Hägerneholm! Lokalen är placerad i markplan med en entré som vetter ut mot to...
-

Magasinsgatan 26Göteborg68 m²ButikKontorslokal i attraktivt läge
Välkommen till denna moderna kontorslokalen om 68 kvm på Magasinsgatan 26. Lokalen nås via innergården och är lokaliserad på plan 2. På plats finner... -
.png&wm=206&hm=115&clip=1&us=0)
Kåsatorpsvägen 5Skövde65 m²KontorÄr du i behov av lokal?
Söker du en lokal för kontorsverksamhet? Här hittar du en perfekt öppen planlösning om 65 kvm. I lokalen finns det ett mindre pentry och en toalett... -

Djäknegatan 31Malmö681 - 1 475 m²KontorCentralt kontor med garage i huset
Kontorslokal belägen på våning 5 mitt i city. Kontoret erbjuder en flexibel planlösning, idag med större kontorslandskap och flertalet mötes- samt kon... -

Invernessvägen 2Danderyd116 m²Industri & verkstadLättillgängligt lager om 116 kvm i Stocksund!
Nu finns möjlighet att hyra ett lager om 116 kvm i Stocksund. Lagret nås enkelt via fastighetens garage eller med personhiss från entréplan. Ytan läm... -
+(1).jpg&wm=206&hm=115&clip=1&us=0)
Östra Kanalgatan 8Karlstad185 m²Industri & verkstadLagerlokal i centrala Karlstad
Nu finns det en sällsynt möjlighet att hyra en rymlig lagerlokal i källarplan med egen nedkörningsramp på Haga, mitt i Karlstad! Lokalen passar er som... -

Sandbäcksgatan 5Karlstad251 m²KontorUnik kontorslokal i sekelskifteshus
Skulle du vilja bedriva din verksamhet i ett charmigt sekelskifteshus, ett stenkast från stan men ändå med vacker utsikt över Klarälven? Då får du... -

Hjärnegatan 3Stockholm251 m²Kontor251 kvm lokal med dubbelhöjd och stora fönsterpartier
Välkommen till en representativ och inspirerande lokal på attraktivt läge på Kungsholmen. Lokalen omfattar 251 kvm fördelade på två plan med markplans... -
Rudenschöldsgatan 18AGöteborg6 m²Industri & verkstad
Förråd på Hisingen
Söker du ett förråd på Hisingen, Göteborg. Balder erbjuder 6 kvm förråd med egen ingång. Lämna en intresseanmälan eller kontakta oss så berättar v...600 kr/m²/år -

Sisjö Kullegata 8Göteborg369 m²KontorYteffektivt och lättanpassat kontor i Sisjön - 369 kvm
Letar ni efter ett kontor som kombinerar smart planlösning, flexibilitet och ett perfekt läge? På Sisjö Kullegata 8 finns nu ett yteffektivt kontor o... -
Aröds Industriväg 66Göteborg1 050 m²Industri & verkstadForma din framtida lokal - inflytt 2028
Nu finns chansen att etablera din verksamhet i en helt nybyggd lokal – anpassad efter dina behov! Fastigheten planeras att uppföras efter bygglovsp... -

Hyllie Stationsväg 2Malmö100 m²KontorKontorshotell & coworkingKontor om 100 kvm i Malmö Arenas kontorshotell
Välkomna till ett modernt kontorsrum om 100 kvm i Malmö Arenas kontorshotell med utsikt över Hyllie Stationstorg. I hyran ingår möbler om så önskas, i... -

Kaptensgatan 13Stockholm10 - 30 m²KontorKontorshotell & coworkingKontorshotell på attraktiv adress på Östermalm!
Nu erbjuder vi flera rum i olika storlekar i en modern och nyrenoverad lokal mitt på Östermalm, bara en gata bort från Strandvägen! Här finns rum mell... -

Hyllie Stationsväg 2Malmö613 m²KontorLjust och modernt kontor i hjärtat av Hyllie
Vi är stolta över att kunna erbjuda och presentera en ljus och flexibel kontorslokal med en yta om 613 kvm i Malmö Arena. Lokalen ligger till största ... -
Värmdövägen 84Nacka10 - 25 m²Industri & verkstad
Förråd för förvaring 10-25 kvm
Tillgängliga förråd mellan 10-25 kvm. Förråden nås via trapphus med hiss eller via parkering. Utrymmet är endast lämpligt för förvaring. Välkommen a... -

Göteborgsvägen 99Ale138 m²Restaurang & caféLjus och rymlig lokal med många möjligheter – 138 kvm
Letar du efter den perfekta platsen för din verksamhet? Nu finns chansen att etablera dig i en flexibel och attraktiv lokal om 138 kvm redo att an... -

Kammakargatan 48Stockholm93 m²KontorHemtrevligt selelskifteskontor i representativ fastighet
Välkommen till en kontorslokal med klass och karaktär! Lokalen ligger en halv trappa upp och nås via en vacker entré och ett stilfullt trapphus. Pl...














.jpg&wm=416&hm=240&clip=1&us=0)





































.jpg&wm=416&hm=240&clip=1&us=0)







.png&wm=416&hm=240&clip=1&us=0)
.png&wm=416&hm=240&clip=1&us=0)
.png&wm=416&hm=240&clip=1&us=0)






.jpg&wm=416&hm=240&clip=1&us=0)
+(1).jpg&wm=416&hm=240&clip=1&us=0)
+(3).jpg&wm=416&hm=240&clip=1&us=0)
.jpeg&wm=416&hm=240&clip=1&us=0)

























