Yta
912 m²
Hyra
Kontakta annonsören
Tillträde
Enligt överenskommelse
Beskrivning
- Kontor
Modern och ljus kontorslokal strax utanför tull
Övrig information
Fastigheten har anor sedan början av 1900-talet, då livsmedelsverksamheter präglade området. Idag består fastigheten av olika byggnader av olika storlek och karaktär. Här finns kontor och en mindre del lager. Utanför fastigheten finns ett utegym byggt 2024 och en workoutyta.
Ytor
-
Total yta:
912 m2
Ekonomi
Enligt överenskommelse.
Utförande
4
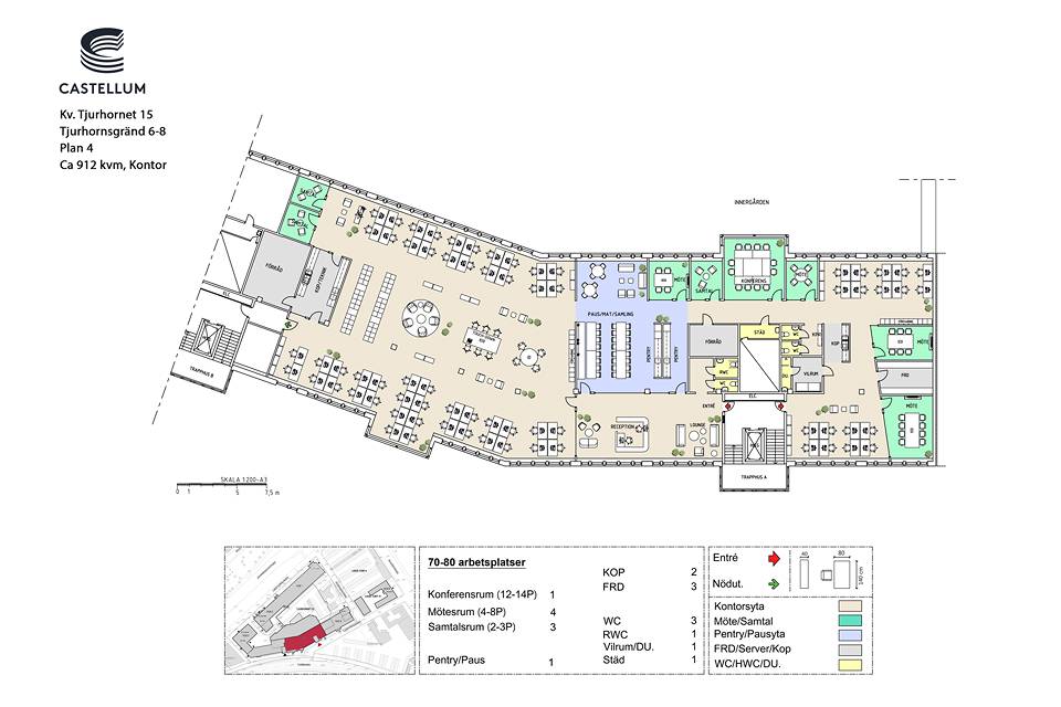
Lokalen omfattar cirka 912 kvm och har en modern och effektiv planlösning anpassad för 70–80 arbetsplatser. Planen domineras av ett stort öppet kontorslandskap med goda ljusinsläpp längs fasaden, kompletterat med flera mindre zoner för samarbete och fokusarbete. I anslutning till arbetsytorna finns ett större konferensrum (12–14 personer), flera mötesrum i varierande storlek samt samtalsrum för enskilda möten eller koncentrerat arbete. Centralt i lokalen är pentry och paus-/matsal placerade, vilket skapar en naturlig samlingspunkt för personalen. Entrén leder in till en receptions- och loungeyta, som ger ett representativt första intryck och fungerar väl för både besökare och interna möten. Lokalen är fullt utrustad med WC-grupp inklusive RWC, dusch/omklädningsrum, förråd, kopiering/serverutrymmen samt städ. Planlösningen är tydligt zonindelad med god separation mellan arbetsplatser, mötesytor och servicefunktioner, vilket ger effektiva flöden och hög flexibilitet för olika typer av verksamheter.
Dokument
Omgivning
Vid sidan av de stora arenorna och Slakthusområdets kulturliv ligger lugna och trivsamma Bolidenplan. Ett avskilt hörn i ett område som just nu går igenom en stor förvandling. Men det märks inte här. För här vajar träden utanför fönstren och det är lätt att finna arbetsro, plats och parkering. Lika lätt som det är att ta sig vidare ut i kvällen och till stans klarast lysande nöjeskvarter, när arbetsdagen tagit slut. Unikt för området är närhet till Globen Centrum, Avicii Arena, Tele-2 Arena samt Slakthusområdet, som kommer bli Stockholms nya mötesplats för mat, kultur och upplevelser. I Slakthusområdet hittar du också Solen och Afrika, två restauranger som tar dig på en kulinarisk resa runt jorden. Solen, som lyfts som en av de mest lyckade krogöppningarna under 2023, och Afrika, som samlar tre olika afrikanska matkulturer under ett och samma tak. Båda värda att besöka efter kontorstid. Kanske är Globenområdet det smartaste valet för er som vill jobba där det händer men investera i något roligare än hyra.
Här finns det parkeringsplatser att hyra. Är du intresserad kontakta Aimo Park på telefonnummer 0771-96 90 00 som ansvarar för hela parkeringslösningen. Det finns även tillgång till både varm-och kallgarage vid fastigheten.
Kommunikationer
Närmaste tunnelbana är Globen som ligger på ca fem minuters promenad. Även Gullmarsplan ligger nära, med ca tio minuters promenadavstånd. Tvärbanan passerar området och har stationen Linde med endast två minuter från fastigheten. För dig som hellre tar bilen finns det också flera smidiga vägar tack vare närheten till stora genomfarts- och kringleder som t ex södra länken samt E4/E20. Gott om parkering finns i området och platser kan hyras direkt av Aimo Park. Byggnaden har flera accesspunkter (fiberkopplingar) från Stokab med benämningarna ENSK003, GLOB1506 och GLOB1414. Med dessa går det att skapa fullt redundanata fiberuppkopplingar för kunder med mycket höga krav på säker uppkoppling.
Om Castellum
Castellum
Fler annonser från Castellum
























Tipsa en vän