Yta
350 m²
Hyra
Kontakta annonsören
Tillträde
Enligt överenskommelse
Beskrivning
- Kontor
Välplanerad lokal i Kistas bästa läge
Övrig information
Fastigheten Kista One är platsen för alla. Vi erbjuder en rad olika kontorslösningar med ett serviceutbud som innehåller allt ett företag behöver. Med två bemannade receptioner och fyra konferensrum, som drivs av teamet på I Know A Guy, sträcker sig vår service från effektiv posthantering till professionell eventplanering, och såklart allt där emellan! På innergården har vi skapat en inbjudande miljö med mängder av sittplatser, en terrass och massor av grönytor. Dessutom har Fastigheten Kista One investerat i hållbarhet. Med en solcellsanläggning, geoanläggning och en egen biodling strävar vi mot att minska vår påverkan på miljön. Vår fastighet är stolt certifierad som LEED Gold, vilket understryker vårt engagemang för hållbarhet och miljöansvar.
Ytor
-
Total yta:
350 m2
Bekvämligheter
Ekonomi
Enligt överenskommelse.
Utförande
6
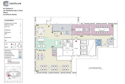
Denna kontorslokal om ca 350 kvm på plan 6 erbjuder en modern och genomtänkt planlösning som kombinerar arbetsytor, mötesrum och laborativa funktioner på ett effektivt sätt. Lokalen rymmer 16 arbetsplatser i ett öppet landskap, kompletterat av flera mötesrum i varierande storlekar – bland annat ett större konferensrum för 14–16 personer, ett mötesrum för 6–8 personer samt ett mindre telemötesrum perfekt för digitala avstämningar. I lokalens centrala del finns en generös lounge- och pentryyta som skapar en naturlig samlingspunkt för personalen. Intill ligger en LAB/demo-zon samt dedikerade utrymmen för FRD/server och kopiering, placerade diskret men lättillgängligt för att stödja den dagliga verksamheten. Planlösningen erbjuder dessutom flera serviceytor såsom WC, RWC och en separat pentrydel, smart integrerade nära entrén och hisshallen för smidiga flöden. De stora fönsterpartierna i båda kontorsytorna ger ett fint ljusinsläpp och skapar en trivsam och öppen arbetsmiljö. Helheten är en flexibel, ljus och funktionell lokal — idealisk för verksamheter som behöver både mötesrum, arbetsplatser och tekniska stödfunktioner i ett sammanhållet och lättnavigerat plan.
Omgivning
Välkommen till Kista. Platsen där människor från hela världen samlas för att upptäcka, utforska, uppfinna och uppleva. Här testkörs ny teknik, här breder gatukonsten ut sig, här överraskar restaurangerna och här frodas grönska och innovationer, precis som nya förmågor och forskarstjärnor. Ändå har Kista mer att erbjuda. De närmaste åren kommer stadsdelen få flera tusen nya bostäder och arbetsplatser samt bli en del av tvärbanan, så att livet kan sprudla i varje hörn och under dygnets alla timmar. Och för att ytterligare ta vara på Kistas fulla potential har vi på Castellum gått samman med andra aktörer i ett initiativ som ger stadsdelen en kulturell och social skjuts. Vad som händer mellan milstolparna är det ingen som vet. Men hör ni hemma bland de nytänkande, är detta platsen för er. Vi lovar att alltid vara på tårna för att hålla jämna steg med både ert företags och Kistas utveckling.
Som hyresgäst på Kista One får du tillgång till en rad olika tjänster som förenklar vardagen för dig och dina kollegor. De två bemannade receptionerna vid huvudentréerna erbjuder receptionsservice och uthyrning av gemensamma konferensrum. Ett fullt utrustat fastighetsgym som drivs av Motion Studios är öppet för samtliga hyresgäster. Garage och separat cykelrum finns i fastigheten och hissar går direkt mellan de olika planen. Där finns laddningsstationer för elbilar och elcyklar tillsammans med tryckluft för pumpning av däck. I garaget erbjuds också biltvätt med service. Kista One erbjuder nu ett nytt gym och en rad andra bekvämligheter för hyresgästerna – allt för att underlätta och höja vardagsupplevelsen i fastigheten. En kort promenad från fastigheten ligger Kista Galleria. Den är en av Stockholms mest välbesökta gallerior och har ett stort utbud av shopping, restauranger och nöjesaktiviteter - bland annat bowling, bio och gokart.
Kommunikationer
Kista är svårslaget om man vill sitta i ett område med bra kommunikationer. Det tar 3 minuter att promenera från fastigheten till Kista tunnelbanestation. Flera busslinjer går genom området, bland annat buss 523 och 178 som stannar vid pendeltågsstationen Helenelund. Du tar dig till Arlanda och Bromma flygplats med pendeltåg eller flygbuss. Snart kommer även Tvärbanan att korsa Kista. Just nu byggs den ut från Norra Ulvsunda via Bromma flygplats till Ursvik för att sedan fortsätta till Kista och Helenelund.
Om Castellum
Castellum
Fler annonser från Castellum

































Tipsa en vän