Yta
120 m²
Hyra
Kontakta annonsören
Tillträde
Enligt överenskommelse
Beskrivning
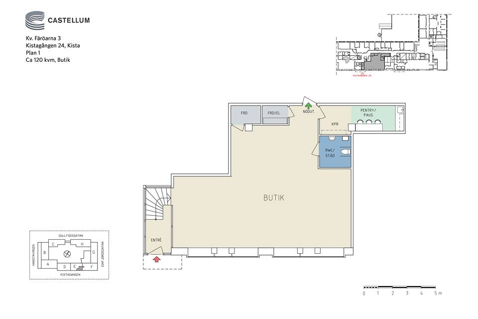
- Butik
Butikslokal med bra skyltläge och egen entré intill Kista Galleria
Övrig information
Fastigheten Kista One är platsen för alla. Vi erbjuder en rad olika kontorslösningar med ett serviceutbud som innehåller allt ett företag behöver. Med två bemannade receptioner och fyra konferensrum, som drivs av teamet på I Know A Guy, sträcker sig vår service från effektiv posthantering till professionell eventplanering, och såklart allt där emellan! På innergården har vi skapat en inbjudande miljö med mängder av sittplatser, en terrass och massor av grönytor. Dessutom har Fastigheten Kista One investerat i hållbarhet. Med en solcellsanläggning, geoanläggning och en egen biodling strävar vi mot att minska vår påverkan på miljön. Vår fastighet är stolt certifierad som LEED Gold, vilket understryker vårt engagemang för hållbarhet och miljöansvar.
Ytor
-
Total yta:
120 m2
Bekvämligheter
Ekonomi
Enligt överenskommelse.
Utförande
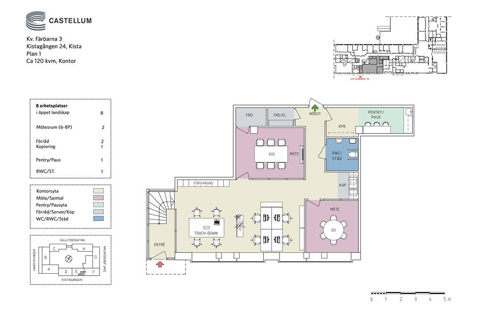
Denna kontorslokal om ca 120 kvm erbjuder en smart och yteffektiv planlösning med fokus på funktion, flöde och trivsel. Lokalen rymmer 8 arbetsplatser i öppet landskap, strategiskt placerade vid fasaden för maximalt ljusinsläpp genom de breda fönsterpartierna. Intill entrén finns en flexibel touch-down-yta som lämpar sig för spontant arbete eller kortare avstämningar. I lokalens centrala del finns två mötesrum för 6–8 personer, väl placerade för kundmöten och interna workshops. Här finns också ett större förråd/kopieringsutrymme som gör det enkelt att hålla ordning och skapa ett rent och strukturerat kontorslandskap. Längre in i lokalen ligger ett pentry med pausyta, komplett med sittgrupp och plats för sociala stunder och informella möten. Denna del är avskild men ändå centralt placerad för att skapa ett naturligt nav i arbetsdagen. Intill pentryt finns även WC samt HWC/DU, vilket ger god tillgänglighet och komfort för alla medarbetare. Planlösningen karakteriseras av tydliga gånglinjer, bra ljusflöden och en harmonisk balans mellan arbetsytor och mötesyta — en idealisk lösning för det mindre företaget som vill sitta modernt, effektivt och representativt.
Dokument
Omgivning
Välkommen till Kista. Platsen där människor från hela världen samlas för att upptäcka, utforska, uppfinna och uppleva. Här testkörs ny teknik, här breder gatukonsten ut sig, här överraskar restaurangerna och här frodas grönska och innovationer, precis som nya förmågor och forskarstjärnor. Ändå har Kista mer att erbjuda. De närmaste åren kommer stadsdelen få flera tusen nya bostäder och arbetsplatser samt bli en del av tvärbanan, så att livet kan sprudla i varje hörn och under dygnets alla timmar. Och för att ytterligare ta vara på Kistas fulla potential har vi på Castellum gått samman med andra aktörer i ett initiativ som ger stadsdelen en kulturell och social skjuts. Vad som händer mellan milstolparna är det ingen som vet. Men hör ni hemma bland de nytänkande, är detta platsen för er. Vi lovar att alltid vara på tårna för att hålla jämna steg med både ert företags och Kistas utveckling.
Som hyresgäst på Kista One får du tillgång till en rad olika tjänster som förenklar vardagen för dig och dina kollegor. De två bemannade receptionerna vid huvudentréerna erbjuder receptionsservice och uthyrning av gemensamma konferensrum. Ett fullt utrustat fastighetsgym som drivs av Motion Studios är öppet för samtliga hyresgäster. Garage och separat cykelrum finns i fastigheten och hissar går direkt mellan de olika planen. Där finns laddningsstationer för elbilar och elcyklar tillsammans med tryckluft för pumpning av däck. I garaget erbjuds också biltvätt med service. Kista One erbjuder nu ett nytt gym och en rad andra bekvämligheter för hyresgästerna – allt för att underlätta och höja vardagsupplevelsen i fastigheten. En kort promenad från fastigheten ligger Kista Galleria. Den är en av Stockholms mest välbesökta gallerior och har ett stort utbud av shopping, restauranger och nöjesaktiviteter - bland annat bowling, bio och gokart.
Kommunikationer
Kista är svårslaget om man vill sitta i ett område med bra kommunikationer. Det tar 3 minuter att promenera från fastigheten till Kista tunnelbanestation. Flera busslinjer går genom området, bland annat buss 523 och 178 som stannar vid pendeltågsstationen Helenelund. Du tar dig till Arlanda och Bromma flygplats med pendeltåg eller flygbuss. Snart kommer även Tvärbanan att korsa Kista. Just nu byggs den ut från Norra Ulvsunda via Bromma flygplats till Ursvik för att sedan fortsätta till Kista och Helenelund.
Om Castellum
Castellum
Fler annonser från Castellum































Tipsa en vän