Nybrogatan 55

Stockholm
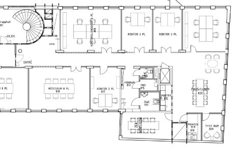
Planskiss

Yta

324 m²

Hyra

Tillträde

Omgående eller enligt överensk

Beskrivning

  • Kontor

Påkostat kontor med exklusiv interiör – Nybrogatan 55

Välkommen till en exklusiv kontorslokal. På Nybrogatan 55, ett stenkast från Östermalmstorg och Stureplan, erbjuder vi nu 324 kvm internationell toppklass. Lokalen totalrenoverades 2022 och präglas av industriell elegans med putsade betongväggar, rostfria detaljer och påkostade moderna materialval. Här har ni ett absolut toppläge vid Östermalmstorg och Stureplan. -Fullservicehus: Lounge i entrén, medlemsgym i källaren och garage i huset. -Stadens bästa restauranger precis runt hörnet -Direkt närhet till Humlegårdens grönska. På våning 6 av 9 möts ni av en välkomnande entré som sätter tonen direkt. Lokalen är optimerad för dagens flexibla arbetssätt med en genomtänkt blandning av storrumskontor och mötesrum i varierande storlekar. Planlösningen rymmer idag ca 20 arbetsplatser och erbjuder en perfekt balans mellan sociala ytor och fokusarbete. Interiören är unik i sitt slag. Kombinationen av råa, putsade betongväggar och exklusiva rostfria fondväggar skapar en atmosfär som är både modern och tidlös. De mjuka, exklusiva mattorna bidrar till en dämpad akustik och en ombonad känsla. Fastighet och service: Byggnaden genomgick en totalrenovering 2022 och erbjuder faciliteter utöver det vanliga. Som hyresgäst har ni tillgång till en representativ lounge vid entrén, café, cykelparkering samt ett medlemsgym i källaren – perfekt för att få ihop livspusslet. Garageplatser finns tillgängliga i huset via Parkando. Läget: Här sitter ni mitt i händelsernas centrum. Med Nybrogatans rika utbud av restauranger, caféer och service utanför dörren och Humlegården ett kvarter bort, erbjuds de anställda en arbetsmiljö i världsklass. Kommunikationerna är oslagbara med tunnelbanans röda linje och flertalet bussar bara två minuter bort. Är detta ert nästa huvudkontor? Kontakta oss för en personlig visning och upplev den unika atmosfären på plats.

Ytor

  • Total yta:

    324 m2

Ekonomi

Tillträde:

Omgående eller enligt överensk

Utförande

Fastighetsbeteckning:

Guldfisken 31

Byggår:

1956

Renoveringsår:

2021

Våningsplan:

6 av 9

Dokument

Teknisk information

Ventilation:

Mekanisk ventilation med kyld tilluft

Omgivning

Närservice:

All tänkbar service finns i närområdet, butiker, restauranger, Sturegallerian m.m.

Kommunikationer

T-bana: Östermalmstorg - röd linje

Nybrogatan 55

Om New Property AB

New Property är en ledande fastighetsrådgivare med ett heltäckande erbjudande från uthyrning till transaktion. Vi är den största uthyraren i Stockholm och möjliggör fastighetstransaktioner över hela Sverige. Vi har ett nytt sätt att se på fastighetsrådgivning som bygger på de förtroendefulla relationerna vi skapar, bekräftat i det stora antalet återkommande kunder. För oss står alltid kunden i centrum. Vi är länken mellan fastighetsägare och hyresgäster - säljare och köpare. Vi är experter på uthyrning, fastighets- och investeringsrådgivning. Vårt dedikerade team har gedigen erfarenhet, marknadsinsikt och engagemang av att skapa bestående värden för våra kunder. New Property grundades 2005, och har vuxit genom organisk tillväxt till att idag vara ett partnerägt bolag med ett team av 30 erfarna fastighetsrådgivare.

New Property AB

Nybrogatan 39

114 39 Stockholm

www.newproperty.se

Fler annonser från New Property AB