Yta
734 - 1 355 m²
Hyra
Kontakta annonsören
Tillträde
Enligt överenskommelse
Beskrivning
- Kontor
Unik och representativa lokal med 200 kvm egen terrass precis vid Kista Galleria!
Övrig information
Fastigheten Kista One är platsen för alla. Vi erbjuder en rad olika kontorslösningar med ett serviceutbud som innehåller allt ett företag behöver. Med två bemannade receptioner och fyra konferensrum, som drivs av teamet på I Know A Guy, sträcker sig vår service från effektiv posthantering till professionell eventplanering, och såklart allt där emellan! På innergården har vi skapat en inbjudande miljö med mängder av sittplatser, en terrass och massor av grönytor. Dessutom har Fastigheten Kista One investerat i hållbarhet. Med en solcellsanläggning, geoanläggning och en egen biodling strävar vi mot att minska vår påverkan på miljön. Vår fastighet är stolt certifierad som LEED Gold, vilket understryker vårt engagemang för hållbarhet och miljöansvar.
Ytor
| Typ av yta | Minsta yta | Maximal yta | Kr/m2/år |
| Kontor | 734 | 1 355 |
Bekvämligheter
Ekonomi
Enligt överenskommelse.
Utförande
1
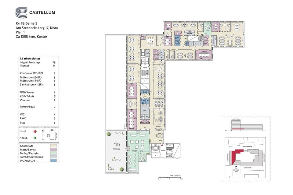
Denna kontorslokal om ca 1 355 kvm erbjuder en mycket välplanerad och funktionell layout med fokus på flexibilitet, flöde och trivsel. Lokalen rymmer totalt 92 arbetsplatser, varav 78 i öppet landskap och 14 i rumsindelade kontor, placerade längs fasaderna för att maximera ljusinsläpp och skapa en ljus och behaglig arbetsmiljö. Centralt i lokalen finns en generös pentry- och pausdel som fungerar som en naturlig samlingspunkt och ligger i direkt anslutning till en stor terrass, perfekt för luncher eller möten utomhus. I anslutning till kärnan finns flera mötesrum – ett större konferensrum för 12–14 personer, två mötesrum för 6–8 personer samt tre samtalsrum för 2 personer. Dessa kompletteras av en flexibel yta för informella möten och samarbete. Längs lokalens övre del finns en rad fokus- och vilrum, servicefunktioner såsom kopiator, förråd och teknikrum, samt WC och RWC strategiskt fördelade. Tydliga gångstråk, flera nödutgångar och separata zoner skapar logiska flöden och gör lokalen enkel att navigera. En modern, ljus och mycket yteffektiv kontorslösning med stor anpassningspotential för växande verksamheter.
Omgivning
Välkommen till Kista. Platsen där människor från hela världen samlas för att upptäcka, utforska, uppfinna och uppleva. Här testkörs ny teknik, här breder gatukonsten ut sig, här överraskar restaurangerna och här frodas grönska och innovationer, precis som nya förmågor och forskarstjärnor. Ändå har Kista mer att erbjuda. De närmaste åren kommer stadsdelen få flera tusen nya bostäder och arbetsplatser samt bli en del av tvärbanan, så att livet kan sprudla i varje hörn och under dygnets alla timmar. Och för att ytterligare ta vara på Kistas fulla potential har vi på Castellum gått samman med andra aktörer i ett initiativ som ger stadsdelen en kulturell och social skjuts. Vad som händer mellan milstolparna är det ingen som vet. Men hör ni hemma bland de nytänkande, är detta platsen för er. Vi lovar att alltid vara på tårna för att hålla jämna steg med både ert företags och Kistas utveckling.
Som hyresgäst på Kista One får du tillgång till en rad olika tjänster som förenklar vardagen för dig och dina kollegor. De två bemannade receptionerna vid huvudentréerna erbjuder receptionsservice och uthyrning av gemensamma konferensrum. Ett fullt utrustat fastighetsgym som drivs av Motion Studios är öppet för samtliga hyresgäster. Garage och separat cykelrum finns i fastigheten och hissar går direkt mellan de olika planen. Där finns laddningsstationer för elbilar och elcyklar tillsammans med tryckluft för pumpning av däck. I garaget erbjuds också biltvätt med service. Kista One erbjuder nu ett nytt gym och en rad andra bekvämligheter för hyresgästerna – allt för att underlätta och höja vardagsupplevelsen i fastigheten. En kort promenad från fastigheten ligger Kista Galleria. Den är en av Stockholms mest välbesökta gallerior och har ett stort utbud av shopping, restauranger och nöjesaktiviteter - bland annat bowling, bio och gokart.
Kommunikationer
Kista är svårslaget om man vill sitta i ett område med bra kommunikationer. Det tar 3 minuter att promenera från fastigheten till Kista tunnelbanestation. Flera busslinjer går genom området, bland annat buss 523 och 178 som stannar vid pendeltågsstationen Helenelund. Du tar dig till Arlanda och Bromma flygplats med pendeltåg eller flygbuss. Snart kommer även Tvärbanan att korsa Kista. Just nu byggs den ut från Norra Ulvsunda via Bromma flygplats till Ursvik för att sedan fortsätta till Kista och Helenelund.
Om Castellum
Castellum
Fler annonser från Castellum





































Tipsa en vän