Smålandsgatan 12

Stockholm
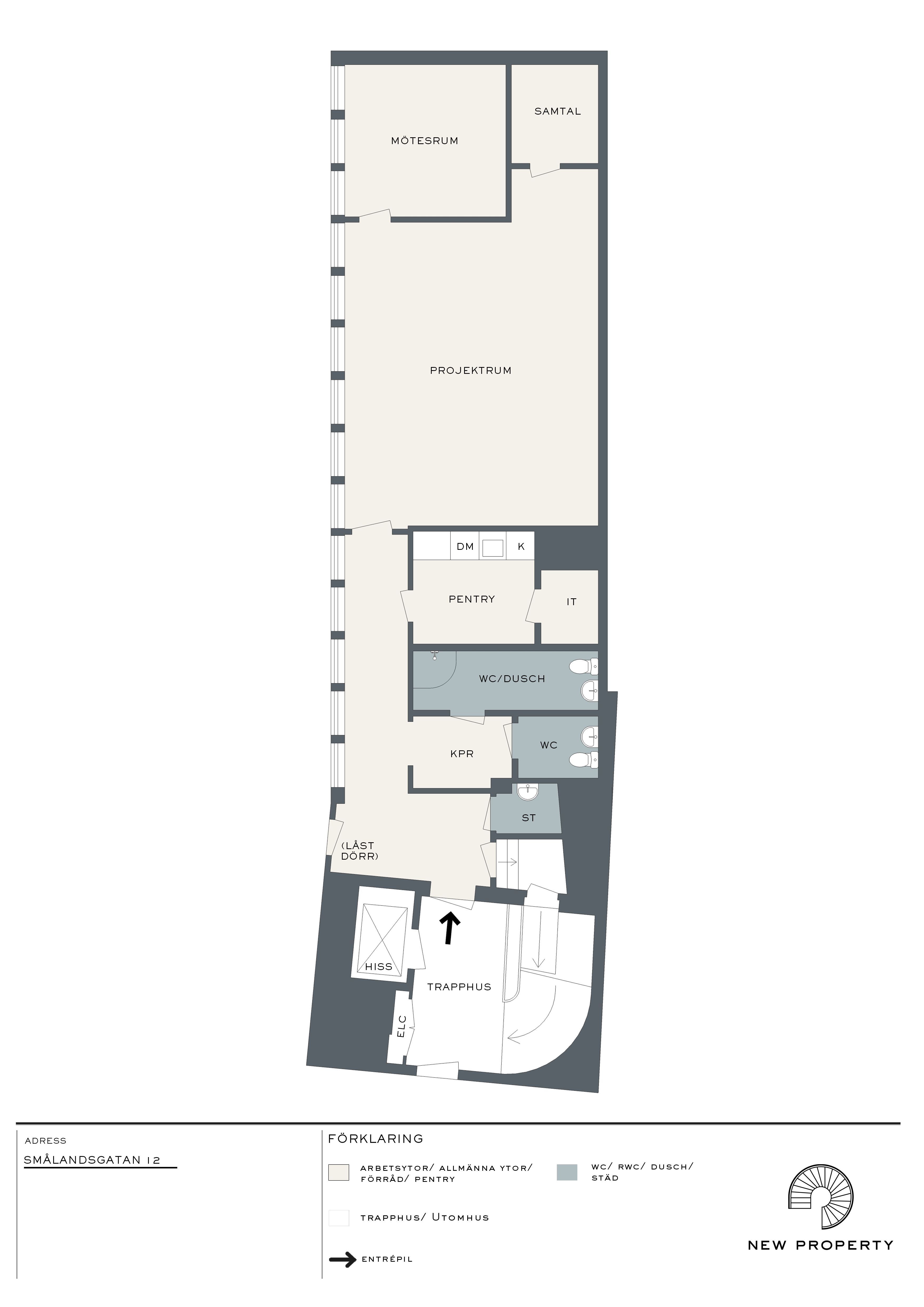
Planskiss

Yta

93 m²

Hyra

Tillträde

Enligt överenskommelse

Beskrivning

  • Kontor

Representativt på Norrmalmstorg med hög standard!

Nu finns det chans att hyra in sig på en mycket trevlig kontorslokal på bästa adress i CBD. Högst upp i fastigheten, mitt på exklusiva Norrmalmstorg, finner ni en representativ och toppmodern kontorslokal om 93 kvadratmeter. Med utsikt över takåsar och materialval av högsta standard är detta en arbetsplats för bolag med höga krav. Att kliva in genom porten på Smålandsgatan 12 är att kliva in i hjärtat av Stockholms affärsdistrikt. Besökare möts direkt av en representativ entré som sätter tonen till ert bolag. Upp på sjätte våningen öppnar denna ljusa lokal upp sig – en perfekt miljö för bolaget som vill sitta på den allra bästa adressen. Vad får du? -Bästa tänkbara läge i hjärtat av CBD (Central Business District). -Våning 6 av 6 med fantastisk utsikt över takåsarna. -Stora ljusa fönster och genomgående hög standard. -Smart rumsindelning för både representation( konferensrum) och fokus. -Två WC (varav en med dusch) Lokalen är optimalt disponerad för att maximera både arbetsro och representationsytor. Ytan är uppdelad i ett öppet landskap med tillhörande konferensrum, vilket gör det enkelt att växla mellan interna möten och kundmottagande. Här finns även ett trevligt pentry samt två stilrena WC, varav den ena är utrustad med dusch – perfekt för den som cyklar till jobbet eller tar en löprunda. Materialvalen är av genomgående hög standard och bidrar till en mycket god och exklusiv känsla i hela lokalen. Placeringen mitt på Norrmalmstorg gör vardagen osedvanligt smidig. Som hyresgäst sitter ni granne med stans främsta utbud av premiumrestauranger, caféer och butiker i Bibliotekstan. Kommunikationerna är oslagbara med spårvagn utanför porten, samt både Östermalmstorgs och Kungsträdgårdens tunnelbanestationer bara ett par minuters promenad bort.

Ytor

  • Total yta:

    93 m2

Ekonomi

Tillträde:

Enligt överenskommelse

Utförande

Fastighetsbeteckning:

Rännilen 19

Byggår:

1963

Våningsplan:

6

Dokument

Teknisk information

Ventilation:

Mekanisk ventilation med kyla

Omgivning

Närservice:

All tänkbar service i området. Stort urval av exklusiva butiker, trevliga restauranger och närhet till kommunikationer.

Kommunikationer

Pendeltåg: T centralen T-bana: Östermalmstorg, Hötorget

Smålandsgatan 12

Om New Property AB

New Property är en ledande fastighetsrådgivare med ett heltäckande erbjudande från uthyrning till transaktion. Vi är den största uthyraren i Stockholm och möjliggör fastighetstransaktioner över hela Sverige. Vi har ett nytt sätt att se på fastighetsrådgivning som bygger på de förtroendefulla relationerna vi skapar, bekräftat i det stora antalet återkommande kunder. För oss står alltid kunden i centrum. Vi är länken mellan fastighetsägare och hyresgäster - säljare och köpare. Vi är experter på uthyrning, fastighets- och investeringsrådgivning. Vårt dedikerade team har gedigen erfarenhet, marknadsinsikt och engagemang av att skapa bestående värden för våra kunder. New Property grundades 2005, och har vuxit genom organisk tillväxt till att idag vara ett partnerägt bolag med ett team av 30 erfarna fastighetsrådgivare.

New Property AB

Nybrogatan 39

114 39 Stockholm

www.newproperty.se

Fler annonser från New Property AB