Forskargatan 17

Södertälje
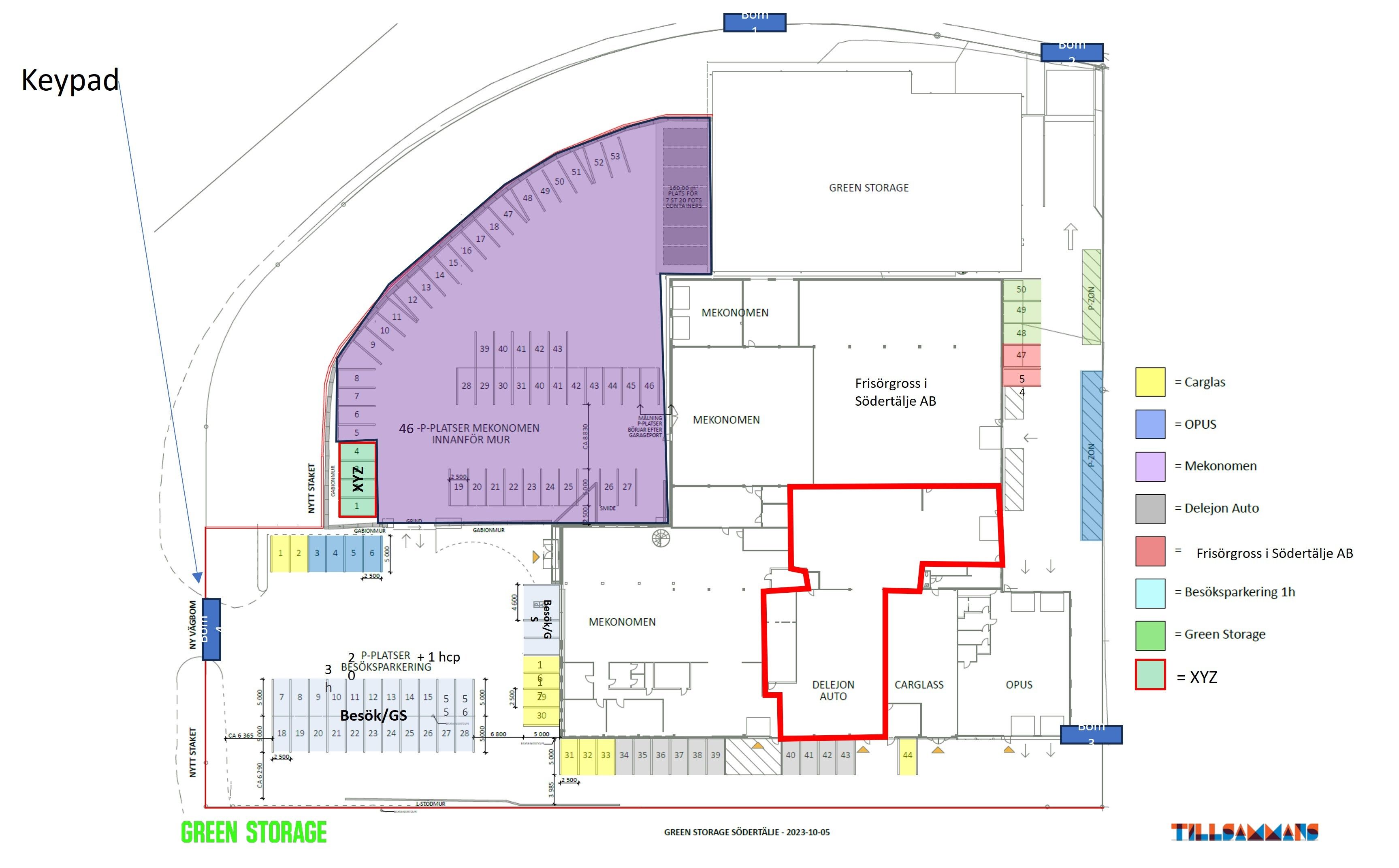
Planskiss

Yta

673 m²

Hyra

Tillträde

Enligt överenskommelse

Beskrivning

  • Butik
  • Lager & logistik

Bli granne med Mekonomen, Opus Bilprovning och Carglass!

Välkommen till Forskaregatan 17! Här erbjuds en strategiskt belägen lokal med ett starkt bilrelaterat kluster. Som direkt granne till Mekonomen, Opus Bilprovning och Carglass skapas optimala förutsättningar för verksamheter inom bilhandel, service eller närliggande koncept. Lokalen är väl synlig med god exponering mot Ängsgatan och erbjuder en modern kundentré. På baksidan finns port samt oljeavskiljare, vilket möjliggör en effektiv och funktionell verksamhet. För mer info kontakta: emma@newproperty.se 070 92 97 007

Ytor

  • Total yta:

    673 m2

Ekonomi

Tillträde:

Enligt överenskommelse

Utförande

Fastighetsbeteckning:

DOMHERREN 5

Dokument

Forskargatan 17

Om New Property AB

New Property är en ledande fastighetsrådgivare med ett heltäckande erbjudande från uthyrning till transaktion. Vi är den största uthyraren i Stockholm och möjliggör fastighetstransaktioner över hela Sverige. Vi har ett nytt sätt att se på fastighetsrådgivning som bygger på de förtroendefulla relationerna vi skapar, bekräftat i det stora antalet återkommande kunder. För oss står alltid kunden i centrum. Vi är länken mellan fastighetsägare och hyresgäster - säljare och köpare. Vi är experter på uthyrning, fastighets- och investeringsrådgivning. Vårt dedikerade team har gedigen erfarenhet, marknadsinsikt och engagemang av att skapa bestående värden för våra kunder. New Property grundades 2005, och har vuxit genom organisk tillväxt till att idag vara ett partnerägt bolag med ett team av 30 erfarna fastighetsrådgivare.

New Property AB

Nybrogatan 39

114 39 Stockholm

www.newproperty.se

Fler annonser från New Property AB