Dalagatan 32

Stockholm
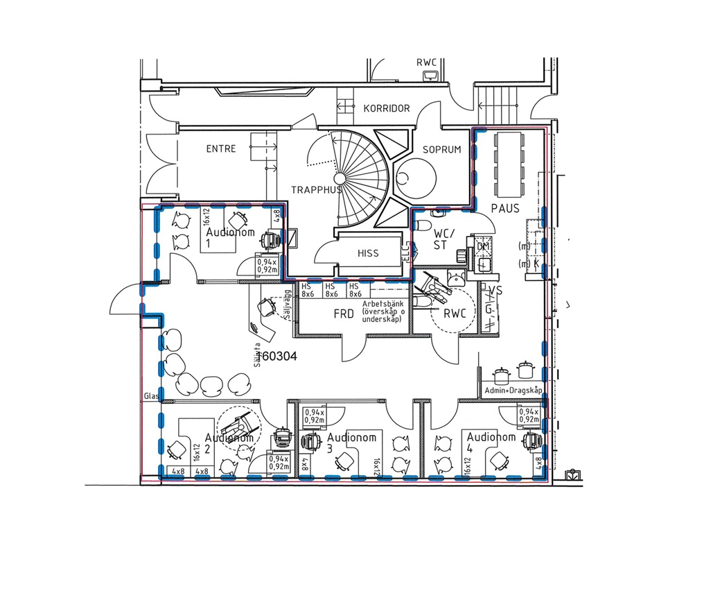
Planskiss

Yta

124 m²

Hyra

Tillträde

Omgående eller enligt ök.

Beskrivning

  • Butik
  • Kontor

Trevlig butikslokal passande för både butik och kontor!

På Dalagatan 32 har du en fin butikslokal med stora fina skyltfönster ut mot Dalagatan. Lokalen har tidigare indelats i 4 st arbetsrum + intern yta samt förråd men går att öppna upp och disponera ytan efter behov. Du har 2 toaletter varav en WC i den externa yta och ytterligare en WC i den interna för en tydlig uppdelning. Nytt avtal skrivs på 3 år. Tillträde från omgående eller enligt överenskommelse.

Ytor

  • Total yta:

    124 m2

Ekonomi

Tillträde:

Omgående eller enligt ök.

Utförande

Fastighetsbeteckning:

Nebulosan 32

Byggår:

1960

Renoveringsår:

2017

Teknisk information

Ventilation:

Mekanisk ventilation

Omgivning

Närservice:

Gott om butiker och resturanger i direkt närhet på Dalagatan och Odengatan. Tvärs över gatan har du ICA med apotek samt en mängd restauranger i olika prisklasser.

Kommunikationer

T-bana: Grön linje från Odenplans T-bana Bussar: Buss nr 4 & 2 stannar vid Odenplan samt en mängder innerstadsbussar Pendeltåg: Pendeltåg från Odenplan

Dalagatan 32

Om New Property AB

New Property är en ledande fastighetsrådgivare med ett heltäckande erbjudande från uthyrning till transaktion. Vi är den största uthyraren i Stockholm och möjliggör fastighetstransaktioner över hela Sverige. Vi har ett nytt sätt att se på fastighetsrådgivning som bygger på de förtroendefulla relationerna vi skapar, bekräftat i det stora antalet återkommande kunder. För oss står alltid kunden i centrum. Vi är länken mellan fastighetsägare och hyresgäster - säljare och köpare. Vi är experter på uthyrning, fastighets- och investeringsrådgivning. Vårt dedikerade team har gedigen erfarenhet, marknadsinsikt och engagemang av att skapa bestående värden för våra kunder. New Property grundades 2005, och har vuxit genom organisk tillväxt till att idag vara ett partnerägt bolag med ett team av 30 erfarna fastighetsrådgivare.

New Property AB

Nybrogatan 39

114 39 Stockholm

www.newproperty.se

Fler annonser från New Property AB