Fatbursgatan 1

Stockholm
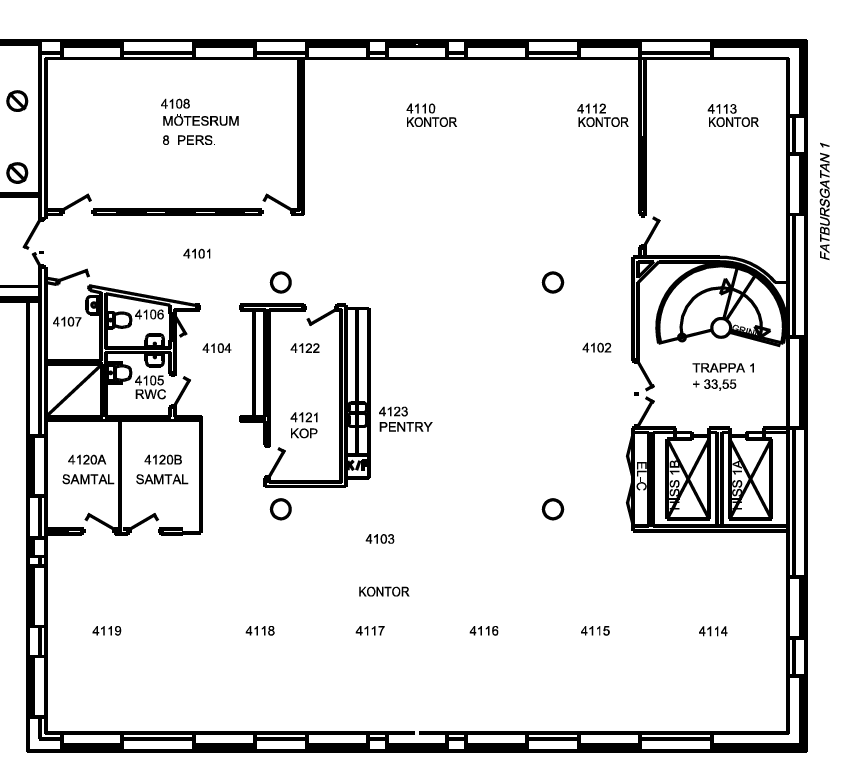
Planskiss

Yta

319 m²

Hyra

Tillträde

Q3 2026

Beskrivning

  • Kontor

Ljus och modern lokal på toppenläge vid Medborgarplatsen!

Nu finns möjligheten att etablera er verksamhet på en av Södermalms mest strategiska adresser. På Fatbursgatan 1, med direkt anslutning till Stockholm Södra, erbjuder vi en yteffektiv och modern kontorslokal om 319 kvm med fantastiskt ljusinsläpp och utsikt över Fatbursparken. Översikt: Modernt kontor: Genomgående fint skick med bra installationer. Social kärna: Lokalen binds samman av en stor loungedel, centralt i lokalen. Ljus och rymd: Tät fönstersättning ger ett fantastiskt ljusinsläpp. Flexibilitet: Yteffektiv och öppen modern planlösning som kan anpassas. Toppenläge: Invid Medborgarplatsen och Stockholm Södra. Kommunikativt nav: Oslagbara förbindelser för både anställda och kunder. Faciliteter: Garage & cykelparkering med laddmöjligheter i huset. Dusch finns i lokalen. En arbetsplats att trivas på Välkommen upp till våning 4. Här möts ni av en representativ och flexibel yta skapad för dagens moderna arbetssätt. Planlösningen är öppen och inbjudande, vilket främjar samarbete och kreativitet, samtidigt som det finns utrymme för fokus. Den täta fönstersättningen fyller lokalen med dagsljus och skapar en energi som känns i hela kontoret. Lokalen håller ett mycket fint skick med bra tekniska installationer, vilket gör att ni kan flytta in och komma igång direkt. Tillträde sker hösten 2026, vilket ger er god tid att planera er nästa fas. Välkommen att kontakta oss redan idag för att boka visning!

Ytor

  • Total yta:

    319 m2

Ekonomi

Tillträde:

Q3 2026

Utförande

Fastighetsbeteckning:

Fatburen Övre 1

Byggår:

1990

Renoveringsår:

2022

Våningsplan:

3

Dokument

Teknisk information

Ventilation:

Mekanisk till och frånluft samt kyla

Omgivning

Närservice:

Mitt i Södermalms puls Att arbeta på Fatbursgatan 1 innebär att ni har hela Södermalms utbud utanför porten. Här varvas trendiga caféer och prisbelönta restauranger med grönområden som Tantolunden för en löptur eller lunchpromenad. I huset finns bekvämligheter som garage och en cykelparkering utrustad med laddstolpar – perfekt för den hållbara pendlaren. Kommunikationer Läget är optimalt för företag med medarbetare spridda över Storstockholm. Med Stockholm Södras pendeltågsstation som granne och Medborgarplatsens samt Mariatorgets tunnelbana några minuter bort, är resan hit smidig oavsett varifrån ni kommer.

Kommunikationer

Bussar: Flertalet bussar stannar utanför fastigheten Pendeltåg: Södra Station Fjärrtåg: Södra Station T-bana: Mariatorget

Fatbursgatan 1

Om New Property AB

New Property är en ledande fastighetsrådgivare med ett heltäckande erbjudande från uthyrning till transaktion. Vi är den största uthyraren i Stockholm och möjliggör fastighetstransaktioner över hela Sverige. Vi har ett nytt sätt att se på fastighetsrådgivning som bygger på de förtroendefulla relationerna vi skapar, bekräftat i det stora antalet återkommande kunder. För oss står alltid kunden i centrum. Vi är länken mellan fastighetsägare och hyresgäster - säljare och köpare. Vi är experter på uthyrning, fastighets- och investeringsrådgivning. Vårt dedikerade team har gedigen erfarenhet, marknadsinsikt och engagemang av att skapa bestående värden för våra kunder. New Property grundades 2005, och har vuxit genom organisk tillväxt till att idag vara ett partnerägt bolag med ett team av 30 erfarna fastighetsrådgivare.

New Property AB

Nybrogatan 39

114 39 Stockholm

www.newproperty.se

Fler annonser från New Property AB