Stora Badhusgatan 37

Centrum, Göteborg
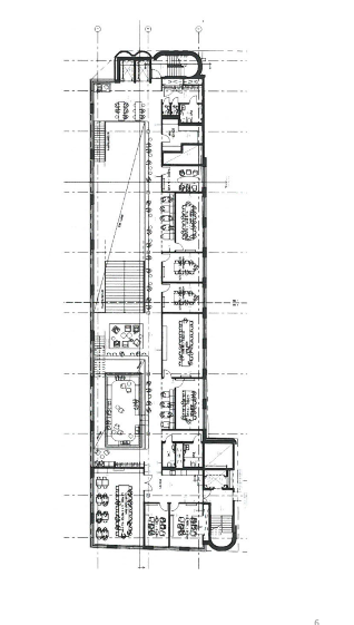
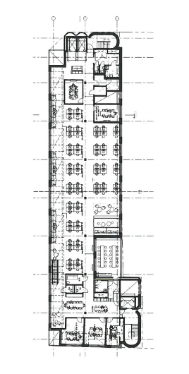
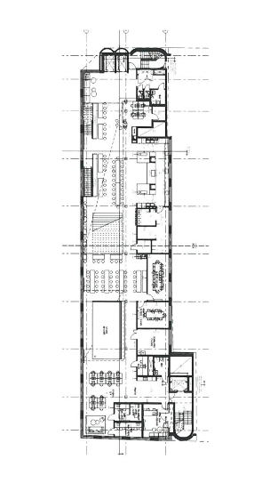
Planskiss

Yta

3 300 m²

Hyra

Tillträde

Beskrivning

  • Övrigt

Framtidens kontor till förmånliga hyresvillkor

Vid älvens glittrande strandkant, precis vid Stenpirens livliga knutpunkt, finner du en kontorslokal utöver det vanliga. Fördelad på fem ljusa och generösa våningsplan erbjuder denna lokal en inspirerande arbetsmiljö där funktion och design smälter samman. Navet i lokalen är en stor, öppen yta med en imponerande gradängtrappa som leder upp till de övriga våningsplanen. Ett av våningsplanen är specialdesignat för möten och konferenser. De övriga våningsplanen är optimerade för både fokuserat arbete och samarbetsprojekt, alltid med tillgång till mindre mötesrum och Teams-rum – så att du enkelt hittar en arbetsplats som passar ditt behov just nu. Högst upp väntar kronan på verket – en privat terrass med magnifik utsikt över Göteborgs landmärken och älven. Den moderna arkitekturen kombinerar råa betongväggar med textila ytor och mjuka mattor, vilket skapar en stilren och behaglig atmosfär och skön arbetsmiljö. Läget är svårslaget: med bara någon minut till Järntorget och Stenpiren har du enkel tillgång till hela stadens utbud av restauranger, service och kommunikationer. Välkommen till en kontorslokal för idag och i morgon – en plats där idéer föds, företag växer och framtiden formas!

Ytor

  • Total yta:

    3300 m2

Stora Badhusgatan 37