Björns Trädgårdsgränd 1

Stockholm
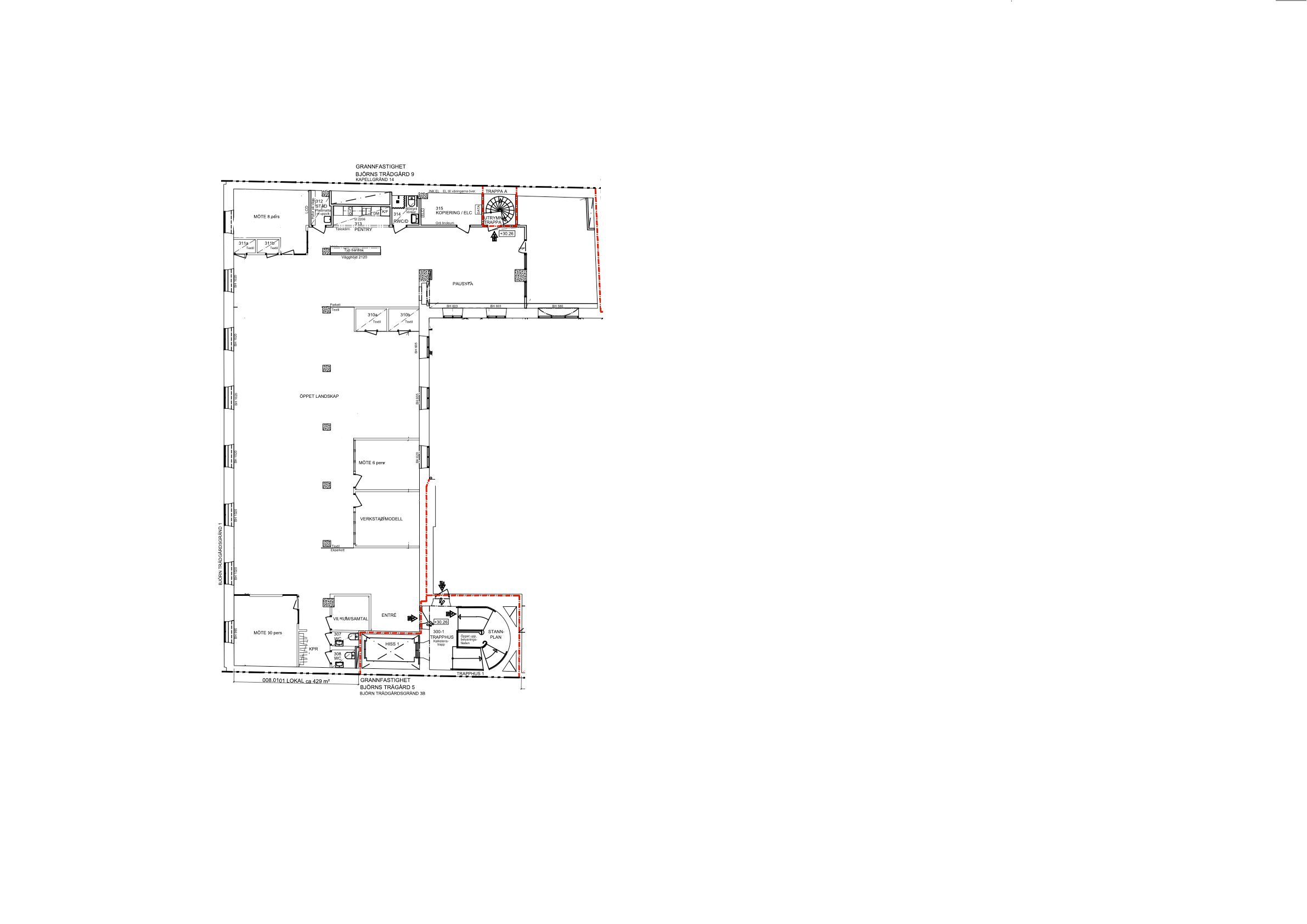
Planskiss

Yta

429 m²

Hyra

Tillträde

Enligt ök

Beskrivning

  • Kontor

Öppen kontorslokal med industrikaraktär vid Medborgarplatsen!

Ljus och karaktärsfull lokal mitt på Söder! På Björns trädgårdsgränd 1 finns nu möjlighet att hyra en rymlig och ljus lokal om ca 428 kvm, belägen 2 trappor upp. Lokalen har en härlig industrikänsla med högt i tak, stora fönsterpartier och en öppen planlösning som gör den flexibel för flera typer av verksamheter – perfekt för kontor, showroom, studio eller kreativt bolag. -Ca 429 kvm, 2 tr -Öppen och lättmöblerad planlösning. -Högt i tak och industrikaraktär -3 WC varav en större med dusch. -Generöst med ljusinsläpp från två väderstreck -Fönster mot både Björns Trädgård och lugn innergård Fastigheten & gården Trevlig innergård som kan nyttjas av hyresgäster Cykelparkering på innergården. Tillträde Från 1/3 eller enligt överenskommelse. Avtalstid 3 år. Varmt välkommen på visning!

Ytor

  • Total yta:

    429 m2

Ekonomi

Tillträde:

Enligt ök

Utförande

Fastighetsbeteckning:

Björns Trädgård 3

Byggår:

1929

Våningsplan:

2 av 5

Teknisk information

Ventilation:

Mekanisk ventilation med kyld tilluft

Omgivning

Närservice:

All tänkbar service i direkt närhet runt Medborgarplatsen.

Kommunikationer

T-bana: Grön linje från Medborgarplatsen, ca 100 meter från entrén

Björns Trädgårdsgränd 1

Om New Property AB

New Property är en ledande fastighetsrådgivare med ett heltäckande erbjudande från uthyrning till transaktion. Vi är den största uthyraren i Stockholm och möjliggör fastighetstransaktioner över hela Sverige. Vi har ett nytt sätt att se på fastighetsrådgivning som bygger på de förtroendefulla relationerna vi skapar, bekräftat i det stora antalet återkommande kunder. För oss står alltid kunden i centrum. Vi är länken mellan fastighetsägare och hyresgäster - säljare och köpare. Vi är experter på uthyrning, fastighets- och investeringsrådgivning. Vårt dedikerade team har gedigen erfarenhet, marknadsinsikt och engagemang av att skapa bestående värden för våra kunder. New Property grundades 2005, och har vuxit genom organisk tillväxt till att idag vara ett partnerägt bolag med ett team av 30 erfarna fastighetsrådgivare.

New Property AB

Nybrogatan 39

114 39 Stockholm

www.newproperty.se

Fler annonser från New Property AB