Yta
2 700 m²
Hyra
Kontakta annonsören
Tillträde
Enligt överenskommelse
Beskrivning
- Kontor
Unik byggnad i hjärtat av Sundbyberg med plats för framtidens idéer
Övrig information
I början av 1920-talet hade föreningslivet växt sig så stort att det inte längre fick plats i det befintliga Folkets Hus. 1925 startades en nybyggnadsfond där 10 öre per vecka togs ut av fackföreningsmedlemmar. Detta gav startkapital till denna fastighet som blev Sundbybergs Nya Folkets Hus med en modern biosalong och en teaterdel. Under åren 2000 och 2001 gjordes en omfattande men varsam, då exteriör och ursprunglig interiör är q-märkt, renovering och modernisering av byggnaden som då anpassades till kontorsverksamhet. Här möter du unika moderna lokaler som fortfarande talar en intressant historia.
Ytor
-
Total yta:
2700 m2
Bekvämligheter
Ekonomi
Enligt överenskommelse.
Utförande
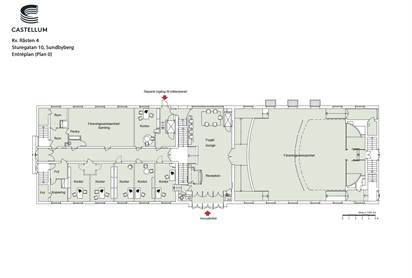
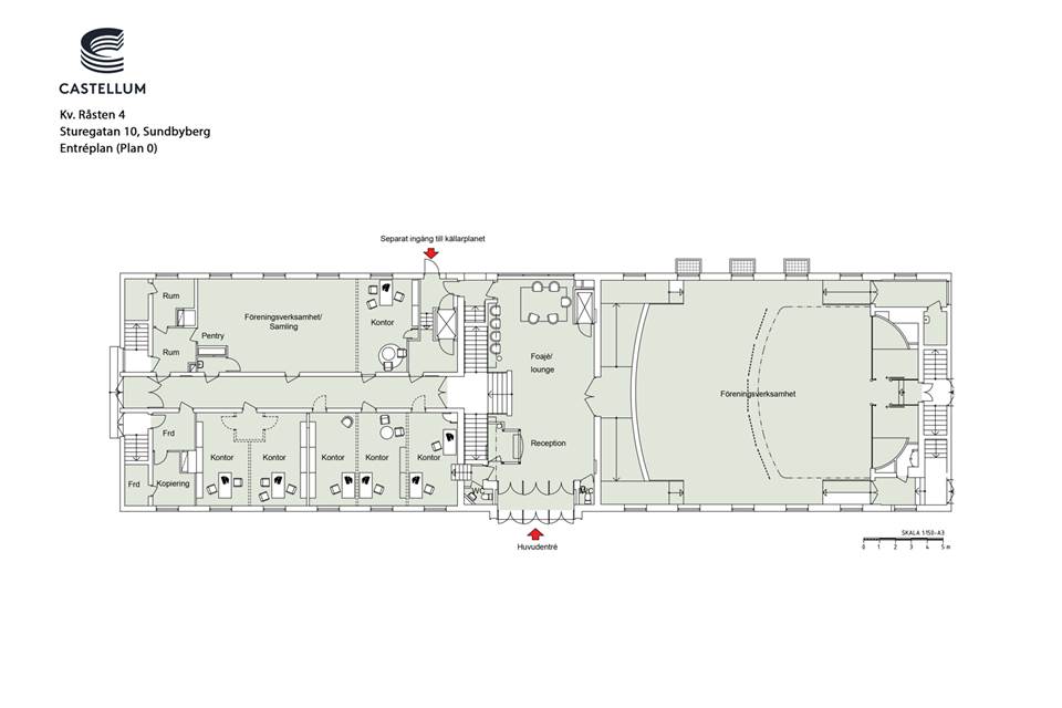
NO: Källarplan består till stor del av öppen yta med intilliggande pentry samt grupprum, även mindre datarum och vilrum finns i källarplanet. Praktiska utrymmen som serverrum och förråd finns här. Entréplan har en flera enskilda kontorsrum, reception, loungeyta samt två samlingsrum i olika storlekar. Här finns även praktiska ytor som förråd och WC. Plan 1 har en stor indelningsbar yta för kontorsplatser eller föreningsverksamhet. Här finns även mindre rum, pentry och loungeyta. Från plan 1 har man även tillgång till det stora samlingsrummet som man kan nå från entréplan. På detta plan finns även flertal grupprum och mindre rum. Plan 2 har en stor öppen yta för kontorsplatser samt plats för material-bibliotek och förråd. Här finns också ett konferensrum sam ett stort rum för möten eller föreningsverksamhet. Vindsplanet består av ett grupprum samt två förråd. Skolfastighet med genomtänkt struktur och flexibilitet Byggnaden kan enkelt utformas utifrån ert behov för att fungera optimalt som skola och erbjuder i en alternativ utformning en effektiv planlösning för så väl gymnasium som vuxenutbildning eller studieförbund. Här kan skapas goda förutsättningar för lärande genom väl avgränsade undervisningsmiljöer och generösa gemensamhetsytor både för elever och personal. Klassrum i flera storlekar, grupprum, fokusrum och öppna studieytor som stödjer varierade arbetssätt och modern pedagogik. Elevhälsa, skolledning och administration kan integreras i byggnaden på ett sätt som ger närhet till undervisningen men samtidigt möjlighet till avskildhet. Planlösningen är logiskt uppbyggd för god överblick, trygga flöden och enkel orienterbarhet. Ritningsförslag som enkelt kan ändras utifrån era förutsättningar och behov. •Plan -1 (ca 401 m²): Elevmatsal med pentry, grupprum, omklädning, dusch, vilrum, RWC samt förråd och teknik. Separat entré. •Plan 0 (ca 721 m²): Entréplan med reception/lounge, fem klassrum, lärarrum, samtalsrum och personalytor. •Plan 1 (ca 713 m²): Fyra klassrum, studieytor, fokus- och grupprum, elevpaus samt elevhälsa och lärarutrymmen. •Plan 2 (ca 531 m²): Större klassrum, skolledning (rektor, admin, SYV, kurator), studieytor och lounge. •Plan 3 (ca 76 m²): Vaktmästeri samt drift- och teknikutrymmen.
Dokument
Omgivning
Sundbyberg är Sveriges minsta kommun – och den mest expansiva. Här möter du en spännande blandning av bostäder, arbetsplatser, butiker och restauranger. Med över 2 500 registrerade företag och en växande befolkning är Sundbyberg en av Stockholms mest dynamiska stadsdelar – men behåller ändå sin unika småstadskänsla. Sturegatan är Sundbybergs självklara huvudgata och erbjuder ett brett utbud av service, mat och shopping. Byggnaden ligger mitt i denna levande stadskärna och blir en naturlig mötesplats.
Kommunikationer
Här är det nära till allt. På bara några minuters promenad når du en av Sveriges största trafikknutpunkter: •Tunnelbana, pendeltåg och tvärbana som snabbt tar dig in till centrala Stockholm (8 minuter). •Bussar och fjärrtåg för smidiga resor regionalt och nationellt. •Nära till E4 och E18 för enkel bilpendling. Här sitter du alltså mitt i Stockholmsregionen, med optimal tillgänglighet för både medarbetare, besökare och publik.
Om Castellum
Castellum
Fler annonser från Castellum


























Tipsa en vän