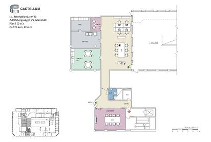
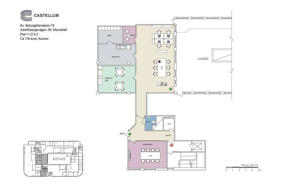
Yta
176 m²
Hyra
Kontakta annonsören
Tillträde
Enligt överenskommelse
Beskrivning
- Kontor
Kontorslokal intill Bromma Handel
Övrig information
En av de två huskroppar som fastigheten består av byggdes av bilfirman Lada från forna Sovjetunionen, där de huserade ett antal år. Idag har byggnaderna stora lokaler som är lätta att växa i, det finns även takterrass med utsikt över Bällstaån, i ett område som är under utveckling i och med att Stockholm växer.
Ytor
-
Total yta:
176 m2
Ekonomi
Enligt överenskommelse.
Utförande
Lokalen omfattar cirka 176 kvm och har en effektiv och modern planlösning som passar ett mindre team. Arbetsytan är disponerad som öppet kontorslandskap med plats för flera arbetsstationer samt kompletterande ytor för samarbete och fokusarbete. I lokalen finns ett konferensrum i separat del, lämpligt för interna möten och externa besök. Därutöver erbjuds ett samtalsrum för enskilda möten eller koncentrerat arbete. Pentry med mat- och pausyta är placerat i egen del av lokalen och skapar en naturlig samlingspunkt. Servicefunktionerna består av WC/dusch, el- och teknikrum samt förråd/kopiering. Lokalen har tydlig entré via trapphus och närhet till hiss. Planlösningen är lättorienterad med god balans mellan arbetsytor, mötesrum och gemensamma funktioner. En yteffektiv kontorslokal som lämpar sig väl för det mindre företaget eller projektteamet som söker ett modernt och funktionellt kontor.
Omgivning
Välkommen till Bromma/Mariehäll, en av Stockholm kommuns största arbetsplatser och ett område som ständigt utvecklas för att bli en förlängning av innerstaden. Beläget vid Bällstaån och gränsande till Sundbyberg, erbjuder detta område en fascinerande mix av kontor, lager och butiker. Inom räckhåll ligger Bromma Blocks, ett imponerande shoppingcenter som inte bara erbjuder en mångfald av butiker utan också ett brett utbud av service. Här finner du allt från shopping och restauranger till andra bekvämligheter. Sundbybergs centrum, en annan närliggande pärla, erbjuder ytterligare möjligheter till shopping, restauranger och en levande stadskärna. Välkommen till Bromma/Mariehäll – där framtid och tradition möts i en pulserande stadsdel!
Parkando har hand om driften av parkeringsanläggningen. Det finns möjlighet att antingen hyra fasta platser i garage eller hyra rörliga tillstånd utomhus. Det finns även parkeringsautomater i området för kortare besök. Är du intresserad, kontakta Parkando på telefonnummer 08 408 396 38. Vi vill vara ett hållbart fastighetsföretag och vill göra det enkelt för våra hyresgäster transportera sig miljömedvetet. Är du intresserad av att kunna ladda din elbil på jobbet kan du kontakta din Biträdande förvaltare för mer information.
I området finns både café och restaurang. På café Lilla Hörnan beläget vid Gårdsfogdevägen 3A kan du avnjuta både morgonkaffe med macka samt lunch. På Restaurang Mariehäll beläget runt hörnet på Karlsbodavägen 17C kan du äta högklassig lunch mån-fre. På andra sidan vägen finner ni Bromma Blocks med all tänkbar service - sportbutiker, heminredning, restauranger och gym.
Kommunikationer
Det går snabbt och lätt att ta sig till Bromma var du än befinner dig. Tvärbanan går ifrån Sickla Udde och genom Bromma, med en hållplats mitt i Mariehäll fram till Solna Station. Området trafikeras av flertalet busslinjer och kopplar ihop Bromma med bland annat Spånga, Alvik, Älvsjö, Solna, Danderyd, Ekerö och Mörby. Sundbyberg som är en stor kommunikationsknutpunkt på gångavstånd erbjuder tunnelbana, pendeltåg och fjärrtåg. Om du färdas med bil är du snabbt ute på lederna med närhet till både E4 och E18.
Om Castellum
Castellum
Fler annonser från Castellum

























Tipsa en vän