Apelbergsgatan 58

Stockholm
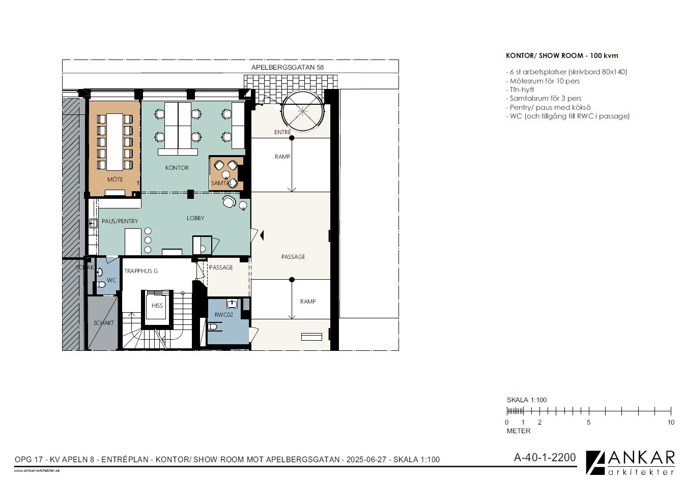
Planskiss

Yta

100 m²

Hyra

Tillträde

Omgående eller enligt överensk

Beskrivning

  • Kontor

Modern och ljus lokal med öppen planlösning – perfekt för kontor eller showroom

Välkommen till en fantastisk lokal mitt i stadens puls, idealisk för företag som söker en inspirerande och funktionell arbetsmiljö med ett fantastiskt skyltfönster ut mot Apelbergsgatan/Målargatan. Lokalen erbjuder en öppen planlösning med generöst ljusinsläpp och en stilren interiör – perfekt för både kontorsverksamhet och showroom. Planlösningen inkluderar ett smakfullt pentry, Här finns plats för cirka 8 arbetsplatser i en trivsam och modern miljö. Som hyresgäst har ni tillgång till en gemensam reception med en välkomnande lounge. Här finns möjlighet att ta en kopp kaffe, äta lunch eller ha spontana möten i en avslappnad atmosfär – en perfekt plats för både medarbetare och besökare att trivas i. En lokal som kombinerar funktionalitet, stil och sociala ytor – redo för en ny hyresgäst!

Ytor

  • Total yta:

    100 m2

Ekonomi

Tillträde:

Omgående eller enligt överensk

Utförande

Fastighetsbeteckning:

Apeln 8

Byggår:

1929

Renoveringsår:

2018

Dokument

Teknisk information

Ventilation:

Kyld tilluft, mekanisk frånluft

Omgivning

Närservice:

Fastigheten erbjuder utmärkta faciliteter som bidrar till en bekväm och hälsosam arbetsdag. Här finns tillgång till ett fullt utrustat gym, cykelrum samt omklädningsrum – perfekt för den som vill cykla till jobbet eller ta ett träningspass under dagen.

Kommunikationer

T-bana: Grön linje till Hötorget eller 3 min till T-centralen/Centralstationen

Apelbergsgatan 58

Om New Property AB

New Property är en ledande fastighetsrådgivare med ett heltäckande erbjudande från uthyrning till transaktion. Vi är den största uthyraren i Stockholm och möjliggör fastighetstransaktioner över hela Sverige. Vi har ett nytt sätt att se på fastighetsrådgivning som bygger på de förtroendefulla relationerna vi skapar, bekräftat i det stora antalet återkommande kunder. För oss står alltid kunden i centrum. Vi är länken mellan fastighetsägare och hyresgäster - säljare och köpare. Vi är experter på uthyrning, fastighets- och investeringsrådgivning. Vårt dedikerade team har gedigen erfarenhet, marknadsinsikt och engagemang av att skapa bestående värden för våra kunder. New Property grundades 2005, och har vuxit genom organisk tillväxt till att idag vara ett partnerägt bolag med ett team av 30 erfarna fastighetsrådgivare.

New Property AB

Nybrogatan 39

114 39 Stockholm

www.newproperty.se

Fler annonser från New Property AB