Regeringsgatan 109

Stockholm
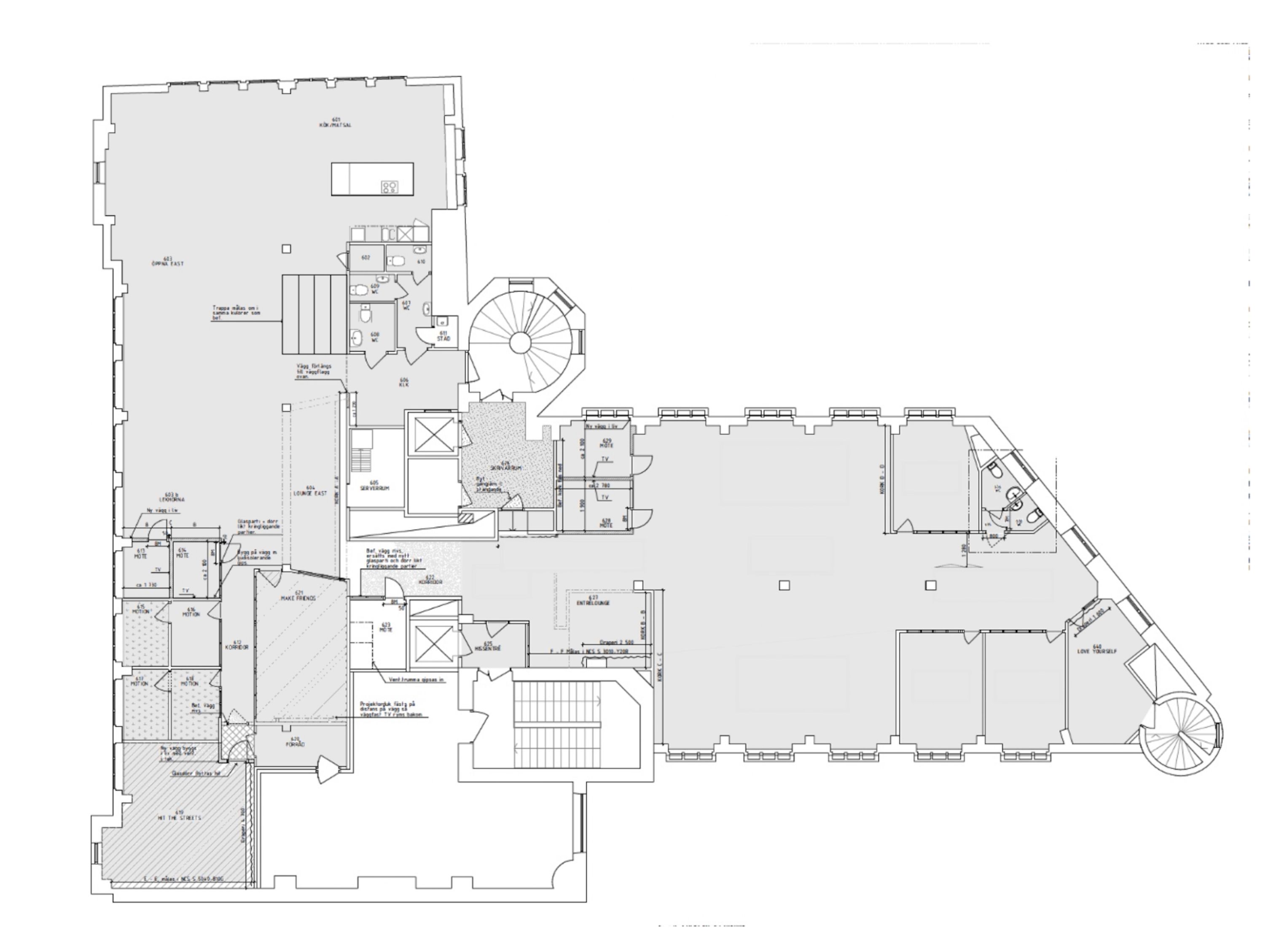
Planskiss

Yta

635 m²

Hyra

Tillträde

Q2/Q3 2025 - Enligt ök

Beskrivning

  • Kontor

Unik kontorslokal med bra takhöjd – högst upp i huset! BRA HYRESNIVÅ!

Väl i lokalen möts du av en trevlig mottagningsyta med närhet till ett bra utbud av mötes/konferensrum i varierande storlek. Det finns bra arbetsytor bra smårum som lämpar sig perfekt för telefon/teamsmöten. Lokalen har ett karaktärsfullt snetak, fantastiskt ljusinsläpp från alla fyra väderstreck som skapar en ljus och luftig arbetsmiljö. I bakkant av lokalen finner du det öppna pentryt som även passar bra för touchdown platser, det finns även 5 wcs och en dusch. Lasthiss rakt in i lokalen som går från förråden och lastkajen.

Ytor

  • Total yta:

    635 m2

Ekonomi

Tillträde:

Q2/Q3 2025 - Enligt ök

Utförande

Fastighetsbeteckning:

Regeringsgatan 109

Byggår:

1910

Renoveringsår:

2022

Våningsplan:

6 av 6

Dokument

Teknisk information

Ventilation:

Mekanisk ventilation

Omgivning

Närservice:

I området finner du: Restauranger, caféer, shopping, apotek, gym m.m.

Kommunikationer

T-bana: Rådmansgatan, Stureplan Bussar: Flertalet bussar kring Birger Jarlsgatan och Sveavägen Pendeltåg: Odenplan

Regeringsgatan 109

Om New Property AB

New Property är en ledande fastighetsrådgivare med ett heltäckande erbjudande från uthyrning till transaktion. Vi är den största uthyraren i Stockholm och möjliggör fastighetstransaktioner över hela Sverige. Vi har ett nytt sätt att se på fastighetsrådgivning som bygger på de förtroendefulla relationerna vi skapar, bekräftat i det stora antalet återkommande kunder. För oss står alltid kunden i centrum. Vi är länken mellan fastighetsägare och hyresgäster - säljare och köpare. Vi är experter på uthyrning, fastighets- och investeringsrådgivning. Vårt dedikerade team har gedigen erfarenhet, marknadsinsikt och engagemang av att skapa bestående värden för våra kunder. New Property grundades 2005, och har vuxit genom organisk tillväxt till att idag vara ett partnerägt bolag med ett team av 30 erfarna fastighetsrådgivare.

New Property AB

Nybrogatan 39

114 39 Stockholm

www.newproperty.se

Fler annonser från New Property AB