Stora Badhusgatan 37

Centrum, Göteborg
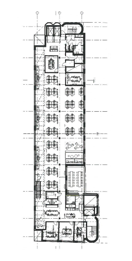
Planskiss

Yta

650 m²

Hyra

Tillträde

Beskrivning

  • Kontor

Kontor med terrass och utsikt!

Högst upp i den nybyggda delen av Merkur-huset erbjuds nu ett exklusivt tillfälle att hyra ett helt våningsplan – komplett med en egen terrass och en magnifik utsikt över älven. Här skapas en inspirerande miljö för trevliga personalmöten, kundevent eller en lugn stund med kaffekoppen i solen. Lokalen har en modern och öppen planlösning med generöst ljusinsläpp, kompletterad av flera mindre mötesrum och tysta telefonbås. Det stilrena köket i rostfritt stål, tillsammans med toppmoderna ytskikt, skapar en trivsam och funktionell arbetsmiljö som man verkligen ser fram emot att komma till varje dag. Läget vid Stenpiren erbjuder utmärkta kommunikationer – både kollektivt och med bil – med parkeringsplatser i direkt anslutning till byggnaden. I närområdet finns ett rikt utbud av restauranger, barer och kulturarenor vid Järntorget och längs Långgatorna. Även Kungsgatan ligger bara ett stenkast bort – perfekt för allt du kan önska dig under och efter arbetsdagen.

Ytor

  • Total yta:

    650 m2

Dokument

Stora Badhusgatan 37