Bränningevägen 12

Årsta
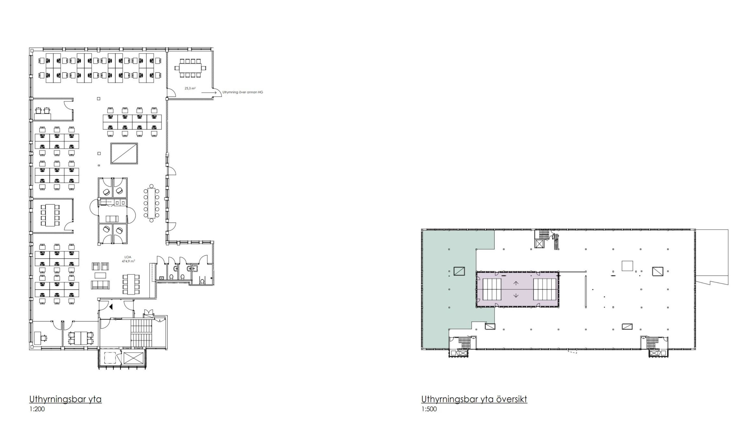
Planskiss

Yta

475 m²

Hyra

Tillträde

Q3 2025 eller enligt överensko

Beskrivning

  • Kontor

Prisvänlig och möblerad lokal med toppläge i Årsta!

Lokal med toppläge i Årsta, nära buss och tvärbana, livsmedelsbutiker och populära lunchrestauranger. Här erbjuds en modern planlösning, möjlighet till korttidskontrakt och två månader hyresfritt samt gratis kaffe i 12 mån vid längre avtal. Lokalen har en flexibel planlösning med både öppna ytor, mindre kontorsrum och mötesrum, och delvis möblerad om så önskas. Goda parkeringsmöjligheter finns i direkt anslutning till fastigheten, inklusive elplatser.

Ytor

  • Total yta:

    475 m2

Ekonomi

Tillträde:

Q3 2025 eller enligt överensko

Utförande

Fastighetsbeteckning:

Bränningevägen 12

Byggår:

2023

Våningsplan:

3 av 4

Teknisk information

Ventilation:

Kyld tilluft, mekanisk frånluft

Omgivning

Kommunikationer

Bussar: Flertalet bussar trafikerar i området Tvärbana: Ja närmsta station Linde eller Vala Torg T-bana: Grön linje till Gullmarsplan Pendeltåg: Ja Årstaberg Trafikleder: E4/E20, Södra länken samt väg 73.

Bränningevägen 12

Om New Property AB

New Property är en ledande fastighetsrådgivare med ett heltäckande erbjudande från uthyrning till transaktion. Vi är den största uthyraren i Stockholm och möjliggör fastighetstransaktioner över hela Sverige. Vi har ett nytt sätt att se på fastighetsrådgivning som bygger på de förtroendefulla relationerna vi skapar, bekräftat i det stora antalet återkommande kunder. För oss står alltid kunden i centrum. Vi är länken mellan fastighetsägare och hyresgäster - säljare och köpare. Vi är experter på uthyrning, fastighets- och investeringsrådgivning. Vårt dedikerade team har gedigen erfarenhet, marknadsinsikt och engagemang av att skapa bestående värden för våra kunder. New Property grundades 2005, och har vuxit genom organisk tillväxt till att idag vara ett partnerägt bolag med ett team av 30 erfarna fastighetsrådgivare.

New Property AB

Nybrogatan 39

114 39 Stockholm

www.newproperty.se

Fler annonser från New Property AB