Torstenssonsgatan 4

Stockholm
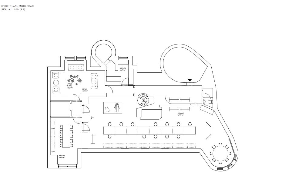
Planskiss

Yta

501 m²

Hyra

Tillträde

Enligt överenskommelse

Beskrivning

  • Kontor

Representativ sekelskifteslokal i hörnan Torstenssonsgatan/Riddargatan!

Torstenssonsgatan 4 erbjuder vi nu en lokal högst upp i huset om totalt ca 501 kvm. Ytan är uppdela i ca 300 respektive 201 kvm på plan 4 & 5 med interntrappa. Lokalen erbjuder stora öppna ytor samtidigt som den håller den fina sekelskiftescharmen som förväntas. En trevlig möjlig extern yta med mötesrum, showroom och entréyta. Längre in i lokalen finns mer arbetsyta, WC med dusch samt pentry med tillhörande möjlig sittyta. Övre våningen har även där ett mindre pentry samt en öppen planlösning. Tillträde enligt överenskommelse. Avtalstid 3 år. Varmt välkommen på visning!

Ytor

  • Total yta:

    501 m2

Ekonomi

Tillträde:

Enligt överenskommelse

Utförande

Fastighetsbeteckning:

Torstenssonsgatan 4

Byggår:

1897

Våningsplan:

4 av 5

Omgivning

Närservice:

Ett flertal restauranger i närområdet på Narvavägen, Riddargatan och Storgatan. Ica på Riddargatan finns runt hörnet. Busstrafik och spårbunden trafik från Djurgårdsbron, ca 100 meter från lokalen.

Kommunikationer

Bussar: Innerstadsbussar från Djurgårdsbron Tvärbana: Tvärbana från Djurgårdsbron ca 100 meter bort från fastigheten.

Torstenssonsgatan 4

Om New Property AB

New Property är en ledande fastighetsrådgivare med ett heltäckande erbjudande från uthyrning till transaktion. Vi är den största uthyraren i Stockholm och möjliggör fastighetstransaktioner över hela Sverige. Vi har ett nytt sätt att se på fastighetsrådgivning som bygger på de förtroendefulla relationerna vi skapar, bekräftat i det stora antalet återkommande kunder. För oss står alltid kunden i centrum. Vi är länken mellan fastighetsägare och hyresgäster - säljare och köpare. Vi är experter på uthyrning, fastighets- och investeringsrådgivning. Vårt dedikerade team har gedigen erfarenhet, marknadsinsikt och engagemang av att skapa bestående värden för våra kunder. New Property grundades 2005, och har vuxit genom organisk tillväxt till att idag vara ett partnerägt bolag med ett team av 30 erfarna fastighetsrådgivare.

New Property AB

Nybrogatan 39

114 39 Stockholm

www.newproperty.se

Fler annonser från New Property AB