Yta
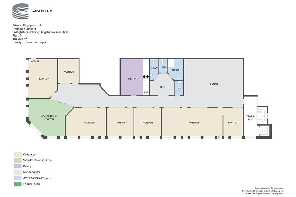
328 m²
Hyra
1 300 /m²/år
Tillträde
Beskrivning
- Lager & logistik
- Kontor
Bästa läget på Ringön för dig som söker lager med kontor!
Övrig information
Fastigheten Tingstadsvassen 12:6 är belägen på Ringögatan 14 i Göteborg och är en industrifastighet som främst omfattar lager- och butikslokaler. Byggnaden uppfördes 1990 och har en total yta på 2 657 kvadratmeter. Fastigheten är placerad i östra delen av Ringöns industriområde.Mycket strategiskt placerat i staden med närhet till både centrum och upp på lederna. Med endast fem minuters bilfärd till Nordstan, Göteborgs största shopping- och affärsområde, har du snabb tillgång till stadens alla faciliteter och stadens puls.
Ytor
-
Total yta:
328 m2
Bekvämligheter
Ekonomi
Indikativt pris i befintligt skick: Kallhyra: 1300 kr/kvm Driftkostnad: 178 kr/kvm Fastighetsskatt: 26 kr/kvm
1300
Utförande
1
Lokalen består idag av flera kontorsrum samt en öppen yta för lagerförvaring, pentry, två wc:n samt ett rum för omklädnad med duschkabin. En egen entré i markplan med tillgång till er egen hiss. Här har vi möjlighet att öppna upp för en alternativ lösning med större yta för lager alternativ butiksyta/showroom.
Dokument
Omgivning
Ringön i Göteborg är ett område där det till stor del erbjuds industrier och kommersiella verksamheter och är känt för sin rustika charm och atmosfär. Området ligger väster om Göta älv, nära centrala Göteborg, strax intill de stora lederna, vilket gör det både strategiskt och lättillgängligt för företag. Historiskt sett har Ringön varit ett industriområde med stor betydelse för staden, där lager, fabriker och olika typer av produktion har dominerat. Idag finns här fortfarande många industrier och hantverksföretag, men även ett växande antal kreativa företag, så som designstudior, ateljéer och nya verksamheter som bidrar till en mer blandad karaktär i området. Det finns även riktigt bra restauranger och caféer i området. En av de stora fördelarna med Ringön är dess närhet till centrala Göteborg. Området ligger bara ett stenkast från stadens puls, vilket gör att det är lätt att ta sig in till exempelvis Nordstan, Göteborgs största shoppingcenter, eller till de centrala affärsdistrikten på bara några minuter. För att sammanfatta Ringön, så är det ett område med både industriell charm och modern utveckling, vilket gör det intressant för företag. Med sin närhet till Göteborgs centrum och goda kommunikationer är det ett område med stor potential för framtida utveckling.
På fastigheten erbjuds det gott om parkeringsmöjligheter, vilket gör det både enkelt och bekvämt för både företag och besökare. Det finns även möjlighet till parkeringsplatser med elbilsladdare för dig som vill tanka grönt. För dig som reser kollektivt finns närmsta hållplats vid Frihamnen som du når med ca 10–15 minuters gångpromenad. Buss 47 går över hela Ringön och närmsta hållplatsen är ca 50 meter från lokalen. Hållplatsen trafikeras av spårvagnslinjerna 5, 6, 10 och 13, vilket ger goda förbindelser till centrala Göteborg och andra stadsdelar.
Här är en levande stadsdel med flertalet kaféer och populära matställen. Här kan du hitta små lunchhak och specialiserade matställen. Ringön har också blivit en plats för kreativa verksamheter, och här finns ateljéer, galleriutrymmen och mindre eventlokaler. Väl värt ett besök!
Kommunikationer
Här erbjuds utmärkta förbindelser till både huvudled och Skandinaviens största hamn. Närliggande nedfarter till Tingstadstunneln och den nybyggda Marieholmstunneln kopplar fastigheten till E20, E45 och E6 söderut, samt till Landvetter flygplats, som ligger cirka 30 minuter bort. Etablera din verksamhet här och få ett praktiskt läge för ditt företag, med närhet till både kommunikation och service.
Om Castellum
Castellum
Fler annonser från Castellum


























Tipsa en vän