Yta
1 499 m²
Hyra
Kontakta annonsören
Tillträde
Enligt överenskommelse
Beskrivning
- Kontor
Stor och modernt kontor med egen terrass!
Övrig information
Fastigheten med gångavstånd till flyget och tvärbanan utanför dörren. Tack vare sin närhet till Bromma flygplats har det här alltid suttit företag med kopplingar till flyg. Fastigheten består av flera byggnader med kontor och samt industriytor som konverterats till handel/Grosshandel.
Ytor
-
Total yta:
1499 m2
Bekvämligheter
Ekonomi
Enligt överenskommelse.
Utförande
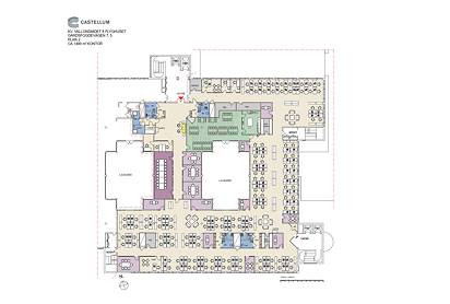
Denna kontorslokal om cirka 1 629 kvm erbjuder en rymlig och välstrukturerad planlösning med tydliga zoner för samarbete, fokusarbete och sociala ytor. Längs fasaderna löper stora öppna kontorslandskap med plats för många arbetsplatser och ett generöst ljusinsläpp från de omfattande fönsterpartierna. Den öppna strukturen skapar god överblick och möjliggör effektiv teamindelning. Centralt i lokalen finns en väl tilltagen pentry- och pausdel, utformad som ett socialt nav med gott om sittplatser. Intill ligger flera mötesrum i olika storlekar, inklusive större konferensrum och mindre samtalsrum, vilket ger utmärkta möjligheter för både interna och externa möten. Lokalen innehåller också ett flertal tysta rum, projektutrymmen och flexibla arbetsstationer. I kärnan finns funktionella serviceytor såsom WC-grupper, RWC, städ, förråd och server-/kopieringsrum, strategiskt placerade för att skapa smidiga flöden i verksamheten. Layouten binds samman av breda kommunikationsstråk som gör lokalen lättnavigerad och skapar en naturlig rörelse mellan arbetsytor, mötesrum och sociala delar. Helheten ger ett modernt, skalbart och funktionellt kontor med stora möjligheter att anpassas efter olika arbetssätt och organisationsstrukturer.
Dokument
Omgivning
Välkommen till Bromma/Mariehäll, en av Stockholm kommuns största arbetsplatser och ett område som ständigt utvecklas för att bli en förlängning av innerstaden. Beläget vid Bällstaån och gränsande till Sundbyberg, erbjuder detta område en fascinerande mix av kontor, lager och butiker. Inom räckhåll ligger Bromma Blocks, ett imponerande shoppingcenter som inte bara erbjuder en mångfald av butiker utan också ett brett utbud av service. Här finner du allt från shopping och restauranger till andra bekvämligheter. Sundbybergs centrum, en annan närliggande pärla, erbjuder ytterligare möjligheter till shopping, restauranger och en levande stadskärna. Välkommen till Bromma/Mariehäll – där framtid och tradition möts i en pulserande stadsdel!
Parkando har hand om driften av parkeringsanläggningen. Det finns möjlighet att antingen hyra fasta platser i garage eller hyra rörliga tillstånd utomhus. Det finns även parkeringsautomater i området för kortare besök. Är du intresserad, kontakta Parkando på telefonnummer 08 408 396 38 Vi vill vara ett hållbart fastighetsföretag och vill göra det enkelt för våra hyresgäster transportera sig miljömedvetet. Är du intresserad av att kunna ladda din elbil på jobbet kan du kontakta din Biträdande förvaltare för mer information.
I fastigheten finns både café och restaurang. På café Lilla Hörnan beläget vid Gårdsfogdevägen 3A kan du avnjuta både morgonkaffe med macka samt lunch. På Restaurang Mariehäll beläget runt hörnet på Karlsbodavägen 17C kan du äta högklassig lunch mån-fre. På andra sidan vägen finner ni Bromma Blocks med all tänkbar service - sportbutiker, heminredning, restauranger och gym.
Kommunikationer
Det går snabbt och lätt att ta sig till Bromma var du än befinner dig. Tvärbanan går ifrån Sickla Udde och genom Bromma, med en hållplats mitt i Mariehäll fram till Solna Station. Området trafikeras av flertalet busslinjer och kopplar ihop Bromma med bland annat Spånga, Alvik, Älvsjö, Solna, Danderyd, Ekerö och Mörby. Sundbyberg som är en stor kommunikationsknutpunkt på gångavstånd erbjuder tunnelbana, pendeltåg och fjärrtåg. Om du färdas med bil är du snabbt ute på lederna med närhet till både E4 och E18.
Om Castellum
Castellum
Fler annonser från Castellum





























Tipsa en vän