Skeppargatan 27

Stockholm
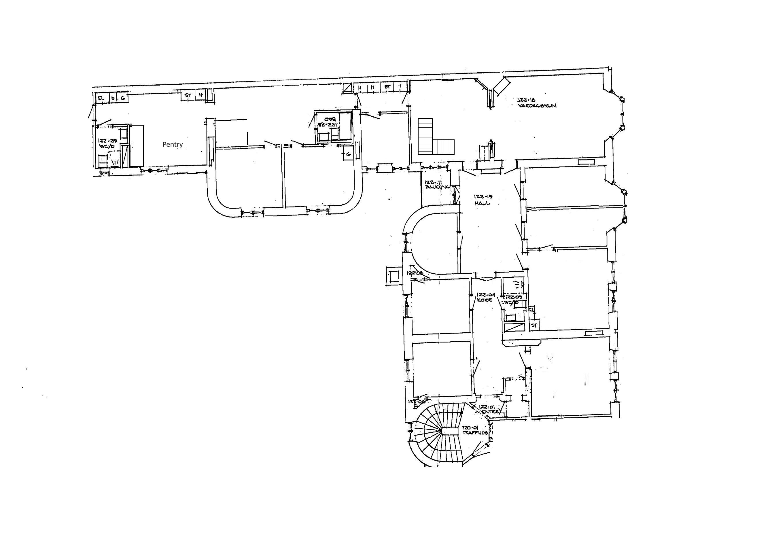
Planskiss

Yta

309 m²

Hyra

Tillträde

Enligt överenskommelse

Beskrivning

  • Kontor

Möjlighet att vara med och anpassa en fin sekelskifteslokal!

Lokalen ligger på 1 tr upp i huset med rum i fil ut mot Skeppargatan och ett par rum mot fastighetens fina innergård. Lokalen går som i ett L med pentry längst in i lokalen och erbjuder en bra intern yta. Ytan består till majoritet av våning 1 men har även ett extra utrymme i markplan med fönster mot innergården som förbinds via en interntrappa. Hyresvärden kan renovera lokalen i samråd med en ny hyresgäst. 3 st WC varav en större med dusch finns. Tillträde enligt överenskommelse. Avtalstid 3 år. Säkerhet enligt överenskommelse. Välkommen på visning!

Ytor

  • Total yta:

    309 m2

Ekonomi

Tillträde:

Enligt överenskommelse

Utförande

Fastighetsbeteckning:

Skeppargatan 27

Byggår:

1906

Våningsplan:

1 av 5

Dokument

Teknisk information

Ventilation:

Mekanisk ventilation

Omgivning

Kommunikationer

T-bana: T-bana från Östermalmstorg

Skeppargatan 27

Om New Property AB

New Property är en ledande fastighetsrådgivare med ett heltäckande erbjudande från uthyrning till transaktion. Vi är den största uthyraren i Stockholm och möjliggör fastighetstransaktioner över hela Sverige. Vi har ett nytt sätt att se på fastighetsrådgivning som bygger på de förtroendefulla relationerna vi skapar, bekräftat i det stora antalet återkommande kunder. För oss står alltid kunden i centrum. Vi är länken mellan fastighetsägare och hyresgäster - säljare och köpare. Vi är experter på uthyrning, fastighets- och investeringsrådgivning. Vårt dedikerade team har gedigen erfarenhet, marknadsinsikt och engagemang av att skapa bestående värden för våra kunder. New Property grundades 2005, och har vuxit genom organisk tillväxt till att idag vara ett partnerägt bolag med ett team av 30 erfarna fastighetsrådgivare.

New Property AB

Nybrogatan 39

114 39 Stockholm

www.newproperty.se

Fler annonser från New Property AB