Yta
392 m²
Hyra
Kontakta annonsören
Tillträde
Enligt överenskommelse
Beskrivning
- Kontor
a:place, Kistas första Boutiquekontor
Övrig information
En toppmodern fastighet med hållbarhet och kunden i fokus. Trevlig utemiljö med inglasat mötes/lunch-rum. Fastigheten är miljöcertifierad enligt Green Building. Parkering erbjuds i garage och utomhus. Hospitality manager finns på plats i entré-lounge och kan hjälpa till med allt ifrån biltvätt till hundpassning.
Ytor
-
Total yta:
392 m2
Bekvämligheter
Ekonomi
Enligt överenskommelse.
Utförande
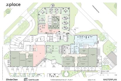
Planlösningen är tydligt zonindelad och kombinerar kontor, konferens och gemensamma ytor i ett sammanhängande plan med flera entréer och god logistik. I den övre delen finns ett modernt kontorslandskap med arbetsplatser i öppna grupper, kompletterat med mötesrum, samtalsrum, kopiering samt pentry och pausyta. Kontorsdelen har nära anslutning till trapphall och hiss, vilket ger smidig tillgänglighet. Den centrala delen utgörs av en generös entréhall med lounge som binder samman lokalen och skapar ett naturligt flöde. Här finns även WC-grupper och övriga servicefunktioner. I den nedre och högra delen ligger en väl tilltagen konferensdel med flera konferensrum i varierande storlekar, lämpade för möten, utbildningar och event. Intill finns café- och serveringsytor som stödjer verksamheten. Sammantaget är detta en flexibel och representativ lokal med tydlig uppdelning mellan arbete, möten och gemensamma ytor, anpassningsbar efter olika verksamhetsbehov.
Omgivning
Hej, hello, guten tag, ni hao, marhaba. Välkommen till Kista. Platsen där människor från hela världen samlas för att upptäcka, utforska, uppfinna och uppleva. Här testkörs ny teknik, här breder gatukonsten ut sig, här överraskar restaurangerna och här frodas grönska och innovationer, precis som nya förmågor och forskarstjärnor. Ändå har Kista mer att erbjuda. De närmaste åren kommer stadsdelen få flera tusen nya bostäder och arbetsplatser samt bli en del av tvärbanan, så att livet kan sprudla i varje hörn och under dygnets alla timmar. Och för att ytterligare ta vara på Kistas fulla potential har vi på Castellum gått samman med andra aktörer i ett initiativ som ger stadsdelen en kulturell och social skjuts. Vad som händer mellan milstolparna är det ingen som vet. Men hör ni hemma bland de nytänkande, är detta platsen för er. Vi lovar att alltid vara på tårna för att hålla jämna steg med både ert företags och Kistas utveckling.
Det spelar ingen roll vem du är, var du kommer ifrån eller vad du gör. Det som betyder något är att du är uppskattad och känner dig välkommen i denna fastighet. Våran servicepartner I know a guy finns här för att erbjuda bästa möjliga service, genom dem kan du som hyresgäst boka hundpassning, biltvätt, catering m.m. Vi finns här för dig. Kista Galleria erbjuder all den service man kan tänka sig och är en av Stockholms mest välbesökta Gallerior. Allt från shopping, restauranger och olika nöjesaktiviteter erbjuds. För den biosugne erbjuder SF en fin och ombygg biograf. Gillar man racing erbjuder O'Learys, förutom bowling även GoCart. Många välkända märken som H&M, KappAhl, Nilsson Shoes, Vero Moda, Indiska mfl finns etablerade här.
Kommunikationer
Från fastigheten till tunnelbanan tar det ca 8 minuter att promenera till T-bana Kista och ca 7 minuter till Pendeltåget Helenelund. Flera busslinjer går genom området och tar dig både till norr och söder över. Till Arlanda och Bromma tar man sig både med taxi, flygbussar eller Pendeltåg (Arlanda). Kista är svårslaget om man vill sitta i ett område med bra kommunikationer. Snart kommer även Tvärbanan att korsa Kista. Den byggs ut från Norra Ulvsunda via Bromma flygplats, Kista och vidare till Helenelund. Kistagrenen ger möjlighet till smarta byten mellan tunnelbana, pendeltåg och bussar.
Om Castellum
Castellum
Fler annonser från Castellum

























Tipsa en vän