Kungsgatan 26

Stockholm
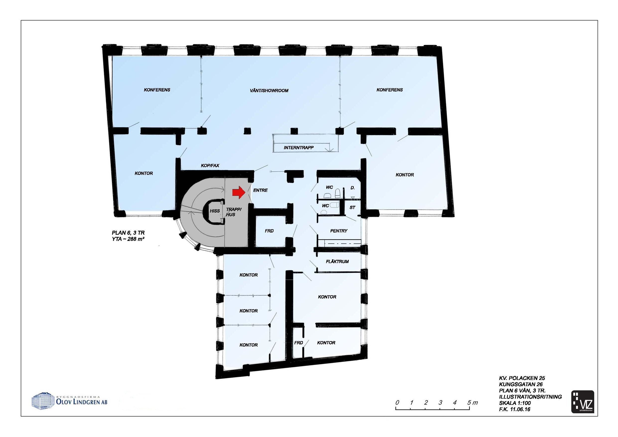
Planskiss

Yta

618 m²

Hyra

Tillträde

Enligt ök

Beskrivning

  • Kontor

Representativt kontor mitt på Kungsgatan med balkong och flaggstång

Nu finns det tillfälle att hyra detta unika kontor med bröstpaneler, kakelugnar och balkong med flaggstång. Rymliga ytor och en god variation av kontor/mötesrum. I lokalen finns en interntrappa mellan de två våningsplan som kontoret fördelar sig på. På lokalens första våning finner du en reception, pentry, två konferensrum samt ett flertal kontorsrum i olika storlekar. Går vi upp för interntrappan finner vi ytterligare kontorsytor och konferensrum, samt en stor öppen yta som exempelvis kan användas som showroom eller yteffektivt öppet kontorslandskap. 4 WC, varav 2 med dusch. Våningsplan 2 tr upp uppgår till 307 kvm. Våningsplan 3 tr upp uppgår till 311 kvm.

Ytor

  • Total yta:

    618 m2

Ekonomi

Tillträde:

Enligt ök

Utförande

Fastighetsbeteckning:

Polacken 25

Byggår:

1926

Renoveringsår:

1981

Våningsplan:

2 av 7

Omgivning

Närservice:

All tänkbar service utanför fastigheten. Kungsgatan erbjuder varierad service av mat, shopping och kultur.

Kommunikationer

T-bana: Hötorget och Östermalmstorg (uppgång Birger Jarlsgatan) Bussar: Flertalet busslinjer i närheten

Kungsgatan 26

Om New Property AB

New Property är en ledande fastighetsrådgivare med ett heltäckande erbjudande från uthyrning till transaktion. Vi är den största uthyraren i Stockholm och möjliggör fastighetstransaktioner över hela Sverige. Vi har ett nytt sätt att se på fastighetsrådgivning som bygger på de förtroendefulla relationerna vi skapar, bekräftat i det stora antalet återkommande kunder. För oss står alltid kunden i centrum. Vi är länken mellan fastighetsägare och hyresgäster - säljare och köpare. Vi är experter på uthyrning, fastighets- och investeringsrådgivning. Vårt dedikerade team har gedigen erfarenhet, marknadsinsikt och engagemang av att skapa bestående värden för våra kunder. New Property grundades 2005, och har vuxit genom organisk tillväxt till att idag vara ett partnerägt bolag med ett team av 30 erfarna fastighetsrådgivare.

New Property AB

Nybrogatan 39

114 39 Stockholm

www.newproperty.se

Fler annonser från New Property AB