Varggatan 23

Stenvreten, Enköping
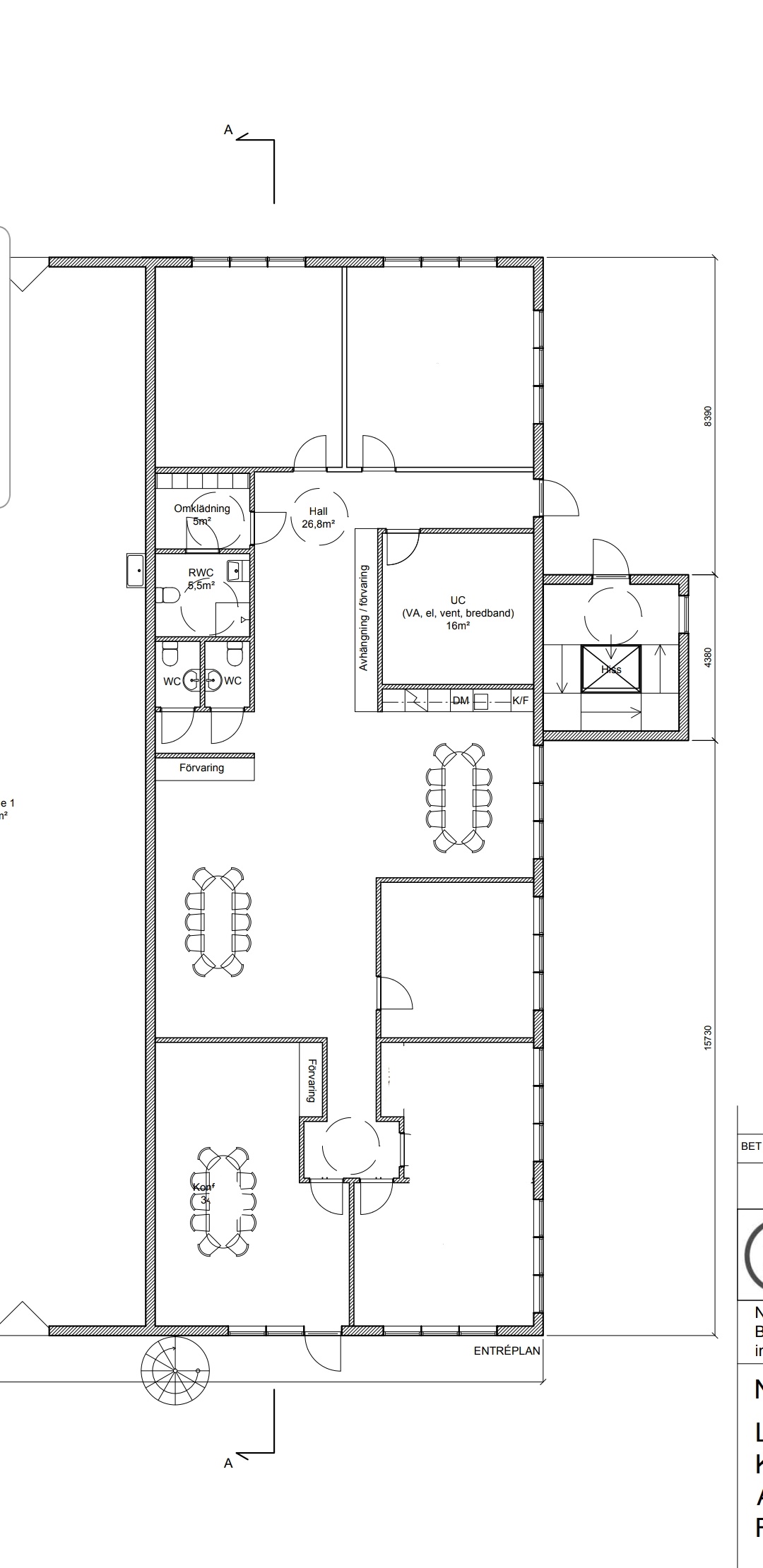
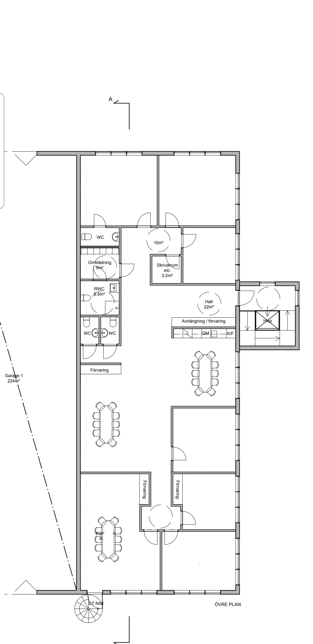
Planskiss

Yta

14 - 10 400 m²

Hyra

Tillträde

Enl ök

Beskrivning

  • Industri & verkstad
  • Lager & logistik
  • Kontor
  • Kontorshotell & coworking

Hyr kontor i olika storlekar. Hyr uppställningsytor på inhägnat område med övervakning.

Övre plan: 224 kvm yta. Kontor i olika storlekar, från ca 14 kvm. Gemensamt kök m matplats/samlingsrum, 2 separata wc, 1 duschrum m wc, 1 gemensamt konferensrum. Genomgående vita ytskikt och parkettgolv, våtutrymmen har kaklade golv. Vattenburen golvvärme i hela övre plan.

Uppställningsplatser uthyres från 40 kvm upp till ca 10 000 kvm, hela området är asfalterat och inhägnat med elektronisk grind och viss övervakning.

Ytor

Typ av yta Minsta yta Maximal yta Kr/m2/år
Kontor 14 400
Övrigt 40 10 000

Ekonomi

Tillträde:

Enl ök

Utförande

Fastighetsbeteckning:

Stenvreten 8:36

Byggår:

2019

Planlösning:

Hela huset inklusive skeppen har vattenburen golvvärme, Bredband/Fiber, Ftx -system. På båda plan finns kök utrustade med 2 st micro, kyl/frys, diskmaskin. I alla rum finns gott om uttag för el/data. På båda plan finns 2 separat wc rum samt 1 duschrum med wc. Genomgående vita ytskikt, på övre plan parkettgolv och nedre plan klinkergolv. Alla våtutrymmen har klinkergolv. Uppställningsytor på asfalterad mark och med markerade ytor för respektive plats. Finns i varierande storlek från 40 kvm och uppåt.

Teknisk information

Uppvärmning:

Ftx-system, golvvärme även i skeppen

Ventilation:

ftx

Hiss:

Ja

Omgivning

Företag i närheten:

Scania, GB Glass, Martin&Servera, Coop m.fl

Parkeringsmöjligheter/garage:

Gott om uppställningslatser/parkeringsplatser enl ök.

Kommunikationer

Busstation finns i direkt anslutning till fastigheten, ca 8 min till Enköpings station Annelunds trafikplats E18 ca 1-2 min med bil

Varggatan 23