Agronomvägen 4

Täby, Täby
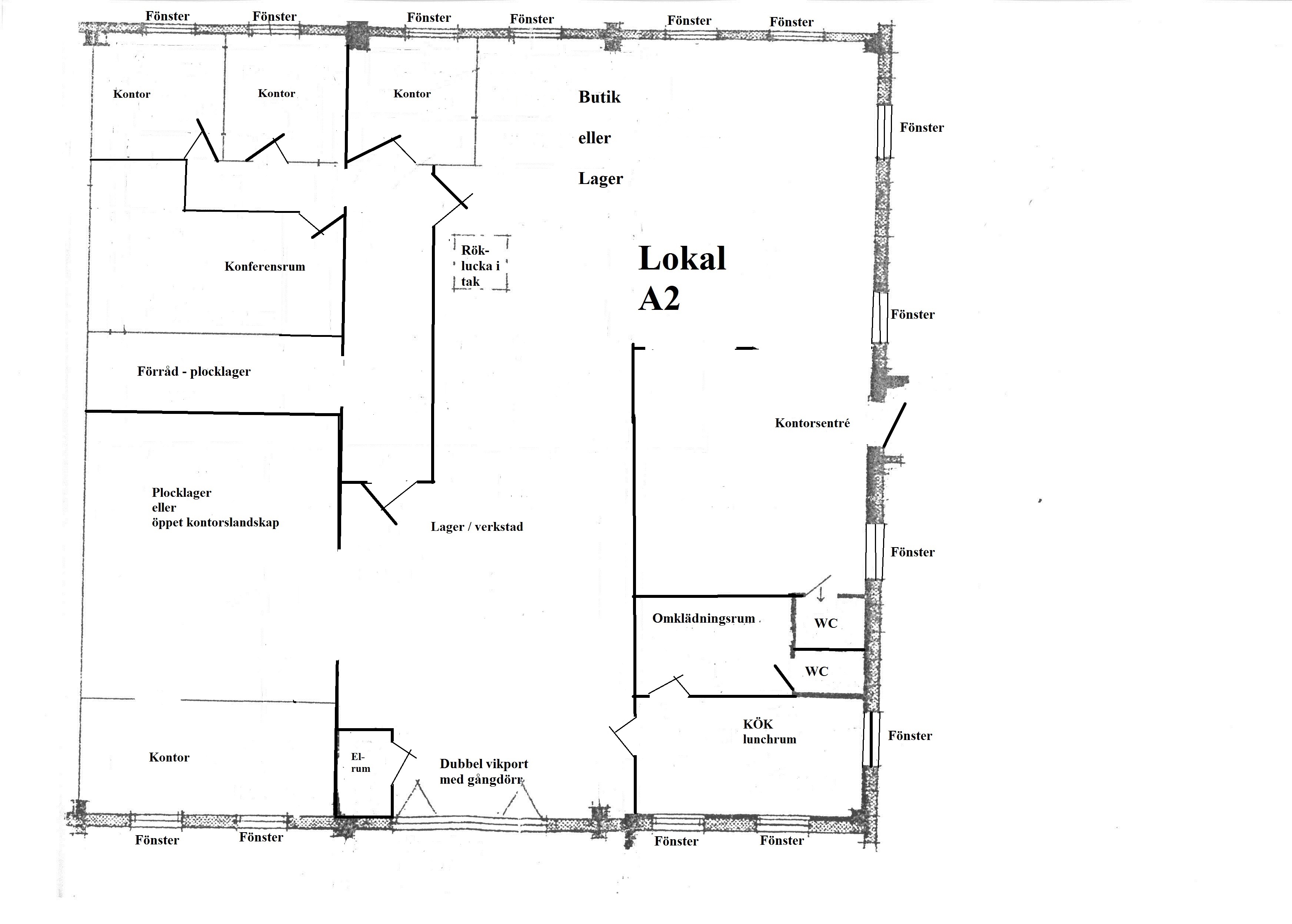
Planskiss

Yta

331 m²

Hyra

1 294 kr/m²/år

Tillträde

Beskrivning

  • Industri & verkstad
  • Lager & logistik
  • Kontor

LEDIG NU! RENOVERAD ! Totalt 331 m² med skyltläge. Kontor 191 m² + lager 140 m². Ring 040-947507. Kan EJ hyra ut till bil/däck/ livsmedel/gym

NYRENOVERAD !
Lokalens totala yta är på ca 331 m².
Kontorsdelen är på ca 191 m² med butiksarea, 4 st stora kontorsrum, öppet kontorslandskap, konferensrum, plocklager, kök, 2 st WC, DUSCH, samt en lagerdel på ca 140 m² med port och gångdörr.

Personal/butiksentré på gaveln och port på långsidan av huset.

Lagerdelen har en takhöjd ca 3,8-4,5 m.

Port i lagret är ca 3,5 m bred och ca 3 m hög.
Entresolplan finns ovanpå kontorsdel.

Lokalen kan enkelt nås med lastbil

Övrig information

Övrigt:

Vi har inte möjlighet att hyra ut till verksamheter inom livsmedel, däck, försäljning av bilar och andra fordon, verkstad för bilar och andra fordon, då våra lokaler ej är anpassade för dessa ändamål.

Ytor

Typ av yta Minsta yta Maximal yta Kr/m2/år
Lager & logistik 140
Kontor 191

Bekvämligheter

Besöksparkering
Dusch
Fiberanslutning
Kök/pentry
Konferens
Kundparkering
Lastport
Omklädningsrum
Parkering
Skyltläge
WC

Ekonomi

Utgångshyra kr/m2/år:

1294

Utförande

Fastighetsbeteckning:

Karbinen 1

Planlösning:

NYRENOVERAD ! Lokalens totala yta är på ca 331 m². Kontorsdelen är på ca 191 m² med butiksarea, 4 st stora kontorsrum, öppet kontorslandskap, konferensrum, plocklager, kök, 2 st WC, DUSCH, samt en lagerdel på ca 140 m² med port och gångdörr. Personal/butiksentré på gaveln och port på långsidan av huset. Lagerdelen har en takhöjd ca 3,8-4,5 m. Port i lagret är ca 3,5 m bred och ca 3 m hög. Entresolplan finns ovanpå kontorsdel. Lokalen kan enkelt nås med lastbil.

Dokument

Omgivning

Parkeringsmöjligheter/garage:

Fria P-platser på gaveln

Närservice:

Täby Centrum inom 5 minuter

Skyltläge:

Mot Bergtorpsvägen och Nya Täbyvägen

Kommunikationer

Busshållplats direkt utanför

Agronomvägen 4